Surinamestraat 30 3

1058 GK AMSTERDAM

Omschrijving

Graag bieden wij u aan: dit prachtige dubbele bovenhuis met een royaal oppervlakte van 102 m2 (NEN2580). De woning is o.a. voorzien van een ruimtelijke woon- en eetkamer, een tweetal goed bemeten slaapkamers (derde slaapkamer eenvoudig te creëren) welke beide zijn voorzien van een badkamer en-suite. Daarnaast beschikt de woning over 3 buitenruimtes zoals: een balkon aan voor- en achterzijde en een geweldig dakterras. De woning is in 2018 intern volledig gerenoveerd, prachtig afgewerkt en van alle gemakken voorzien.

Kortom, een bijzonder sfeervol en ruim appartement met geweldig dakterras dat u gezien moet hebben!

INDELING
Derde verdieping: Via het ruime gemeenschappelijke trappenhuis bereikt u de hal van de woning die toegang biedt tot alle vertrekken. Ruime entree met garderobe, wasmachine-droger opstelling en extra bergruimte. Bij binnenkomst treft u een ruime living met open keuken, bijzonder lichte leefruimte en grote raampartijen. De dubbele beglazing zorgt voor uitstekende (geluids)isolatie. De fraaie keuken met kookeiland is voorzien van inbouwapparatuur zoals o.a. inductie-kookplaat, wasemkap, oven, combi-oven, vaatwasser, koelkast en vriezer.

De eerste goed bemeten slaapkamer met badkamer en-suite, is gelegen aan de rustige achterzijde. De badkamer is voorzien van een wastafel meubel, handdoekradiator en een ruime inloopdouche. Daarnaast is er op deze etage een separaat toilet aanwezig. Aan zowel de voor- en achterzijde van deze etage zijn de balkons gelegen over de gehele breedte van het appartement.

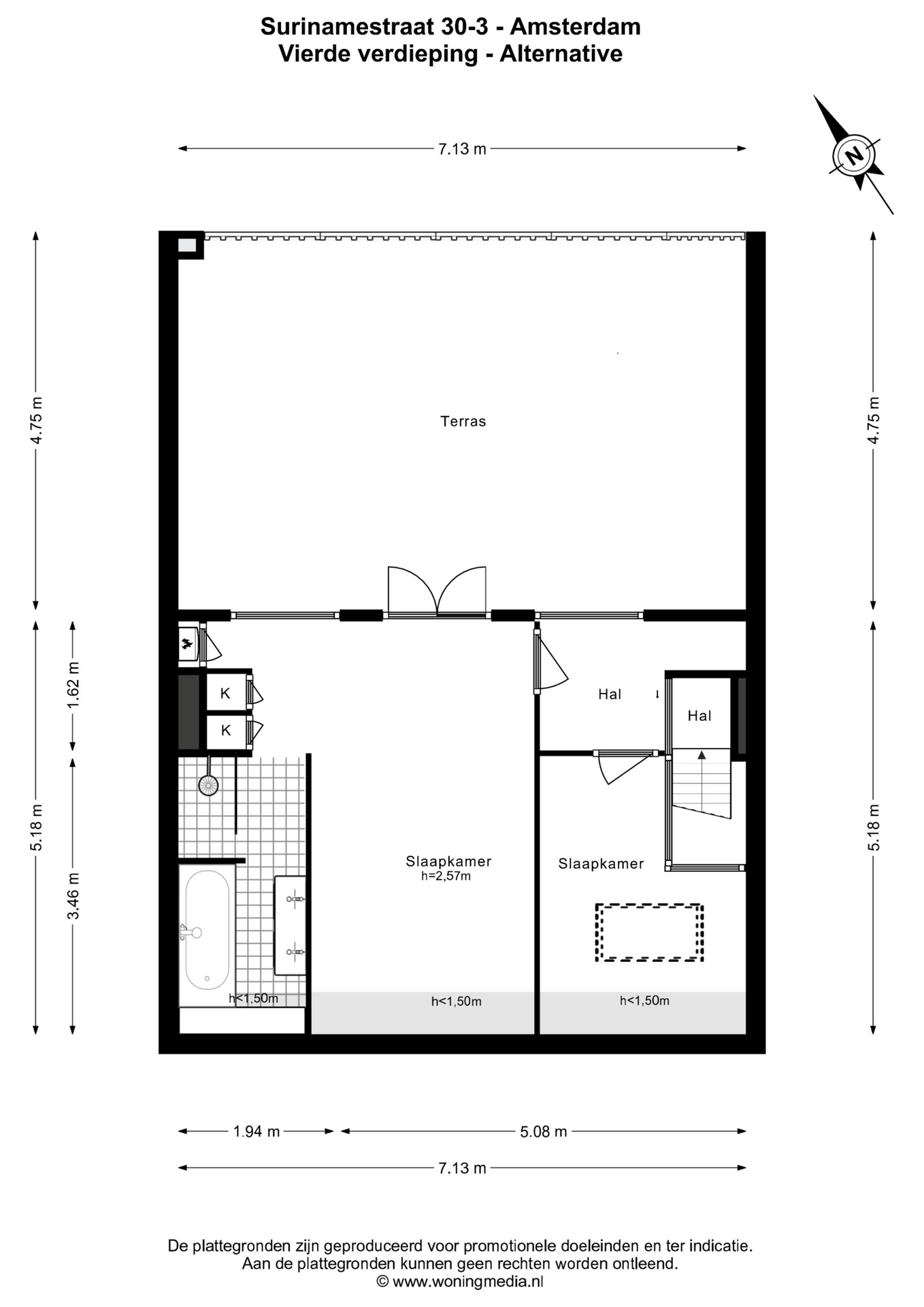
Via de interne trap in de woonkamer bereikt u de vierde etage waar de master-bedroom met badkamer en-suite is gesitueerd. Deze badkamer is voorzien van een ruim ligbad, dubbele wastafel, handdoekradiator en inloopdouche. Ook deze etage is van hetzelfde fraaie afwerkniveau en verschaft toegang tot het riante dakterras van maar liefst 34 m2 met uitzicht op de binnentuinen.

EIGENDOMSSITUATIE
- Gelegen op gemeentelijke erfpachtgrond;
- Canon t/m 15-02-2052 afgekocht;
- Aanvraag voor overstap eeuwigdurende erfpacht onder de gunstige voorwaarden is tijdig gedaan.

METRAGES
- NEN2580 meetrapport aanwezig;
- Woonoppervlakte 102 m2;
- Gebouw gebonden buitenruimte 48,2 m2;
- Bruto inhoud woning 323,17 m3.

VvE
- Actieve, gezonde en professioneel beheerde VvE;
- Professioneel beheer door Falcon;
- Maandelijkse bijdrage €133,42;
- MJOP aanwezig.

BIJZONDERHEDEN
- Woning volledig intern gerenoveerd in 2018;
- Fraai, ruimtelijk en goed onderhouden appartement van 102 m2 verdeeld over twee woonlagen;
- 2 goed bemeten slaapkamers, beide met badkamer en-suite;
- Mogelijkheid om een derde slaapkamer te creëren, zie alternatieve plattegrond;
- Keuken met kookeiland, voorzien van inbouwapparatuur;
- Stijlvolle afwerking;
- CV Ketel vernieuwd in 2020;
- Veel natuurlijk licht door de grote raampartijen;
- Balkon aan de voor- en achterzijde over de gehele breedte, alsmede een riant dakterras;
- Taxatierapport aanwezig;
- Oplevering in overleg.

LOCATIE
Dit appartement is gunstig gelegen op de grens van stadsdeel Baarsjes en Oud-West, met populaire bestemmingen zoals het Vondelpark, de Overtoom, de Jan Pieter Heijestraat en de Amstelveenseweg op loopafstand. De buurt staat bekend om zijn diverse eetgelegenheden, waaronder gezellige restaurants zoals Ter Brugge, Oslo en Bar Kosta, evenals charmante koffietentjes. Voor sportliefhebbers bevindt de Sports & Health club 'David Lloyd' zich vlakbij, en er zijn meerdere supermarkten, waaronder Jumbo, in de buurt. Het openbaar vervoer is gemakkelijk bereikbaar, en met de auto bent u in slechts 2 minuten op de A10-snelweg.

Kenmerken

Oppervlakte 102 m2
Aantal kamers 4
Aantal slaapkamers 3
Beschikbaar In overleg
Toon alle kenmerken

Kenmerken

Overdracht
Vraagprijs € 800.000,- K.K.
Status Verkocht
Aanvaarding In overleg
   
Bouw
Soort appartement Bovenwoning (appartement)
Soort bouw Bestaande bouw
   
Oppervlakten en inhoud
Wonen 102 m2
Inhoud 327 m3
   
Indeling
Aantal kamers 4 (3 slaapkamers)
Aantal badkamers 2
Aantal woonlagen 2
Voorzieningen Mechanische ventilatie, tv kabel, rookkanaal, natuurlijke ventilatie
   
Energie
Energielabel C
Isolatie Vloerisolatie, dubbel glas, volledig geisoleerd, hr glas
Verwarming Cv ketel
Warm water Cv ketel

Locatie

Wilt u meer weten, of een afspraak maken?

We gebruiken uw gegevens alleen om contact met u op te kunnen nemen. Zie ook onze privacyverklaring.