Prinseneiland 33

1013 LL AMSTERDAM

Omschrijving

Op het idyllische Prinseneiland, een verborgen stukje Amsterdam dat bekendstaat om haar karakter en rust, staat dit bijzonder goed onderhouden herenhuis met een woonoppervlakte van circa 202 m², verdeeld over vijf woonlagen en voorzien van een zonnig dakterras van 30 m². Hier woont u in een dorpse setting midden in de stad, met sfeervolle pakhuizen en historische scheepswerven. Prinseneiland wordt niet voor niets omschreven als “de verborgen parel van Amsterdam”: een oase van rust op slechts enkele minuten lopen van de Jordaan, de Haarlemmerdijk en het Westerpark.

INDELING
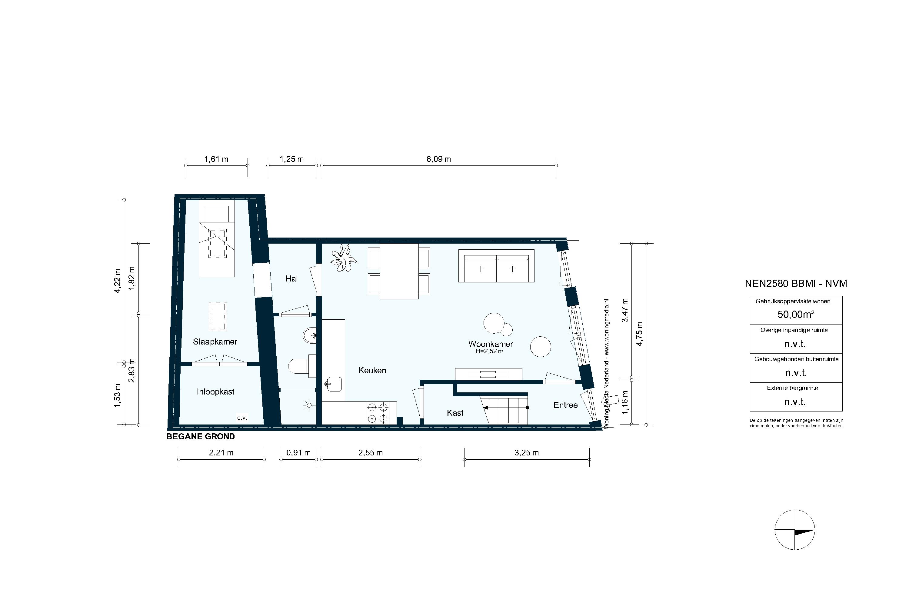
Begane grond (zelfstandige woning)
Via de entree komt u in een zelfstandige woonruimte met een woonkamer en open keuken. Aan de achterzijde ligt een slaapkamer met dakramen, daarnaast een badkamer met douche, wastafel en toilet. Ook is er een aparte wasruimte en een berging/installatieruimte. De openslaande deuren aan de voorzijde geven direct toegang tot de straat.

Eerste verdieping (zelfstandige woning)
Op deze verdieping bevindt zich een tweede zelfstandige woonruimte. Aan de voorzijde ligt de woonkamer met open keuken en uitzicht op de Realengracht, aan de achterzijde een slaapkamer met aansluitende badkamer met douche, wastafel en toilet.

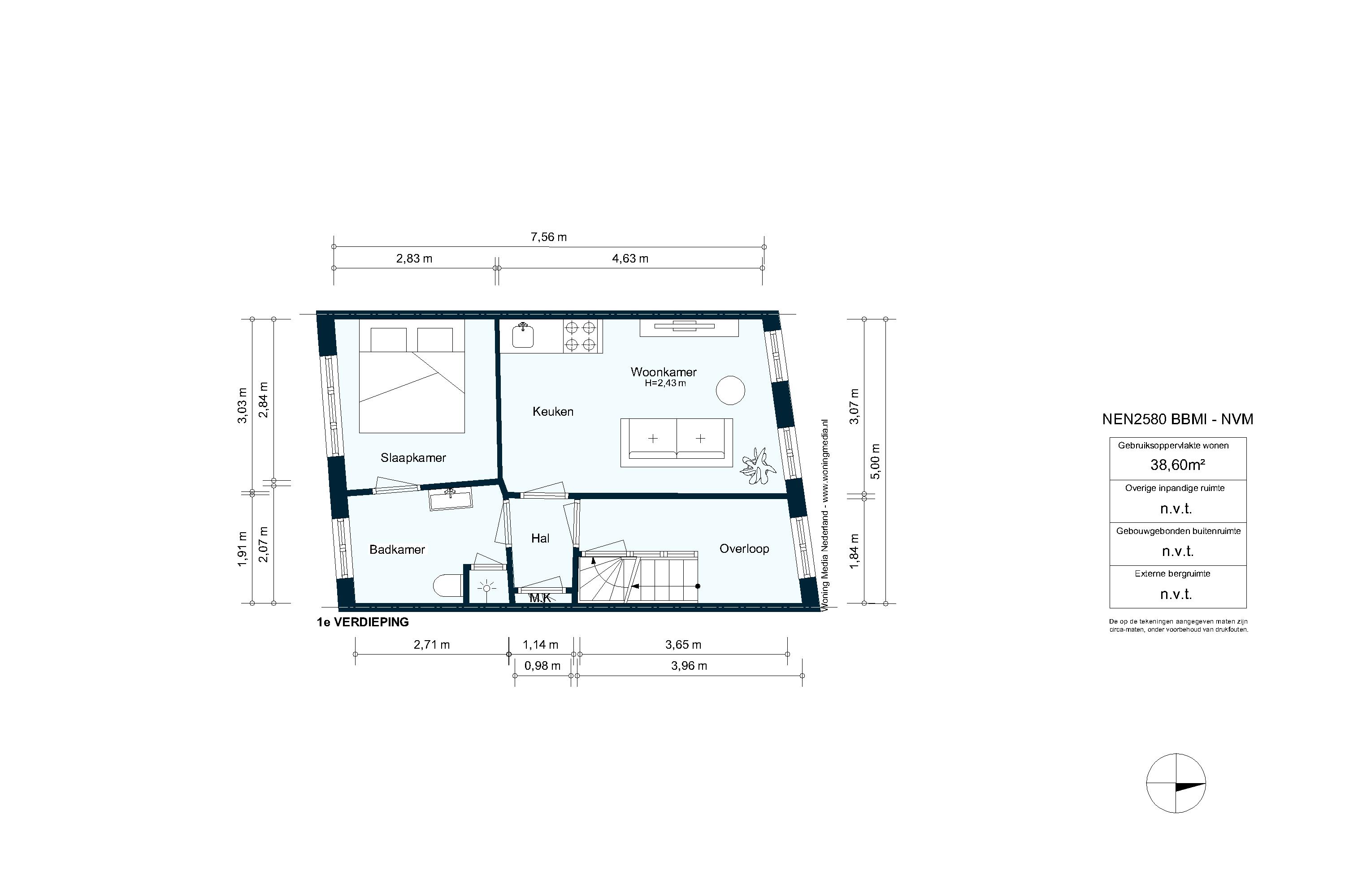
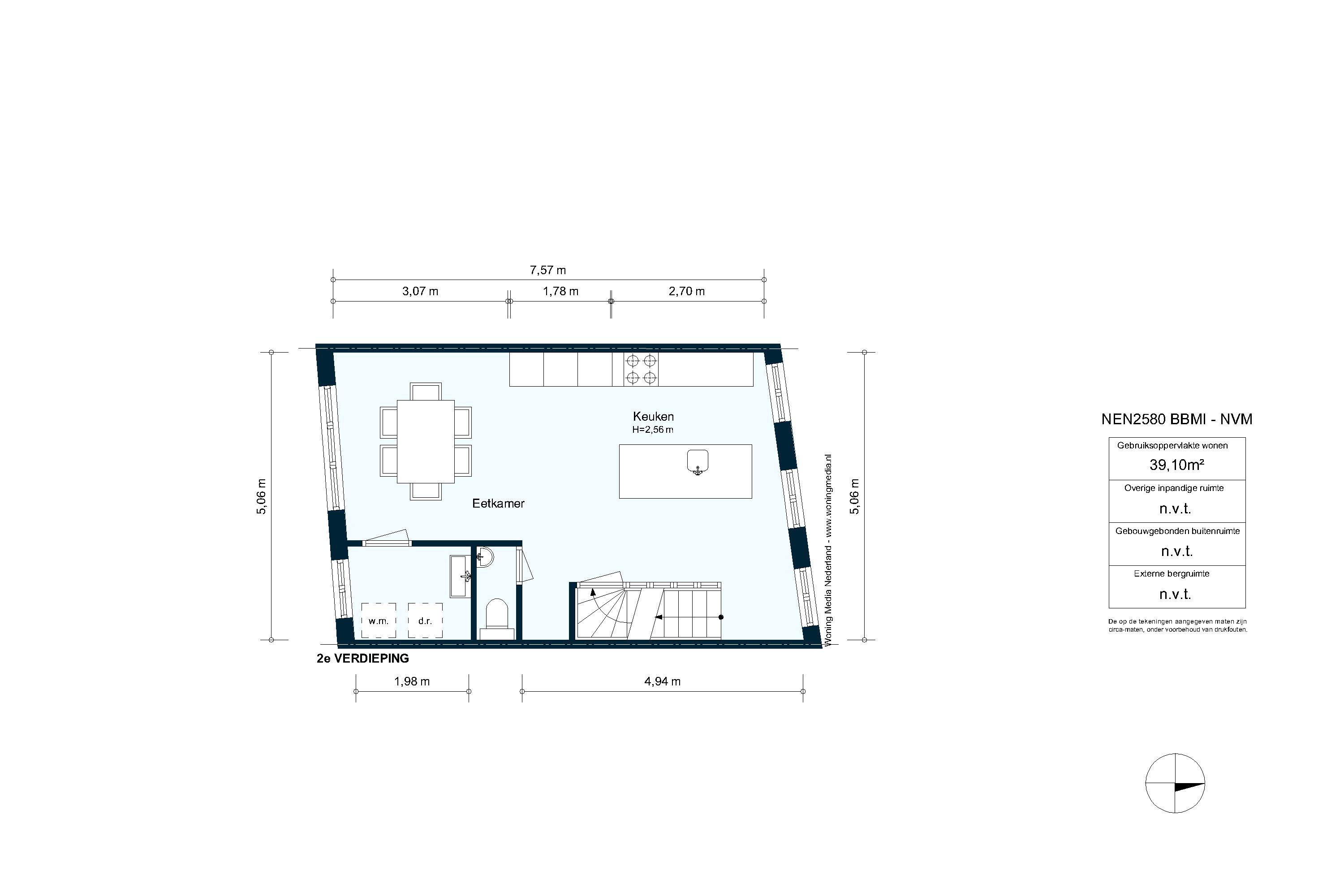
Tweede verdieping (start privéwoning)
Hier begint het privégedeelte van de woning. Een royale woon- of eetkamer met modern kookeiland (2020) bevindt zich over de volle diepte van het pand, met uitzicht aan zowel de voor- als achterzijde. Op deze verdieping zijn tevens een wasruimte en separaat toilet aanwezig.

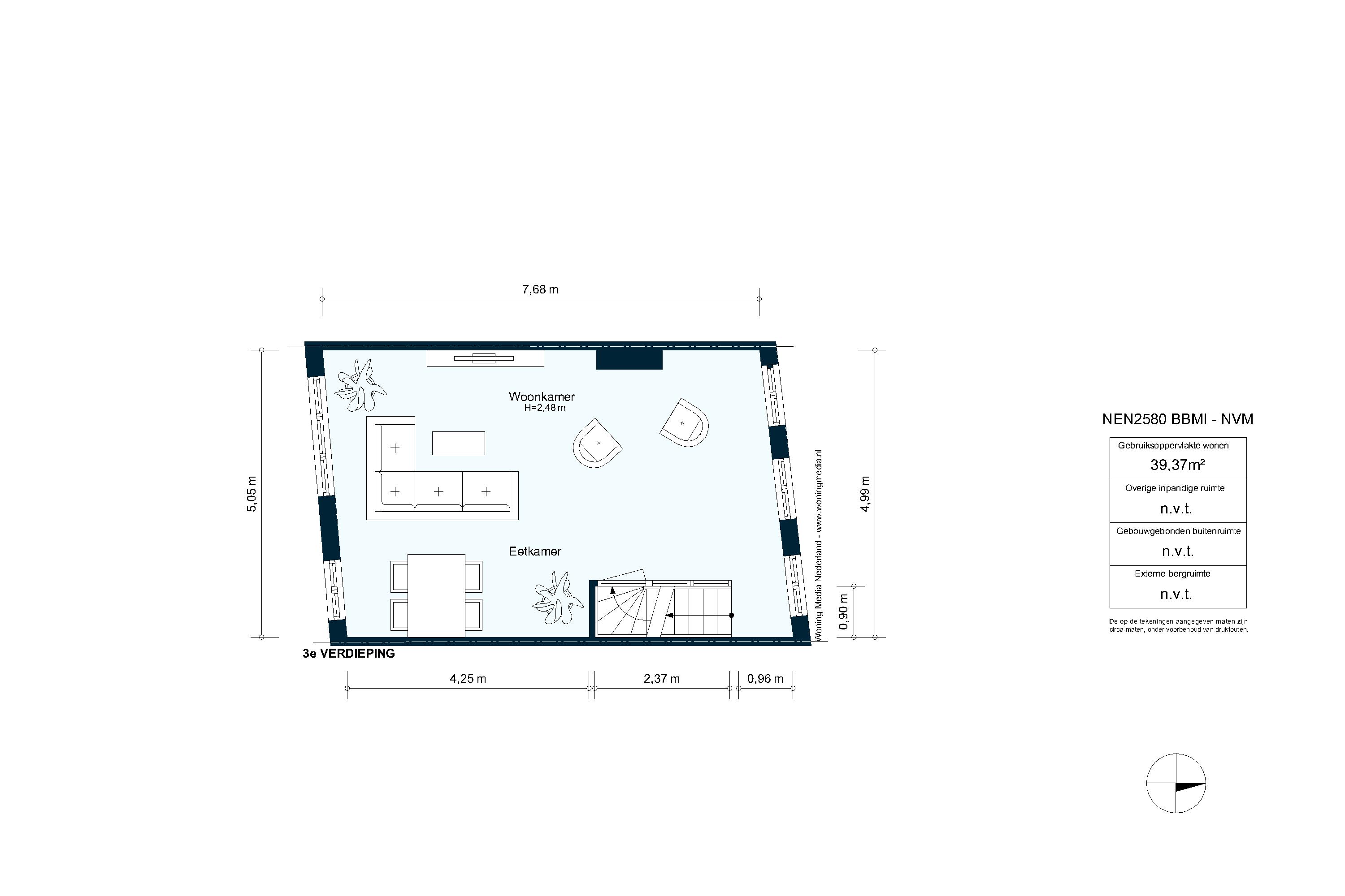
Derde verdieping
Een sfeervolle living met open haard en ramen aan beide zijden van het huis, met vrij uitzicht over de Realengracht.

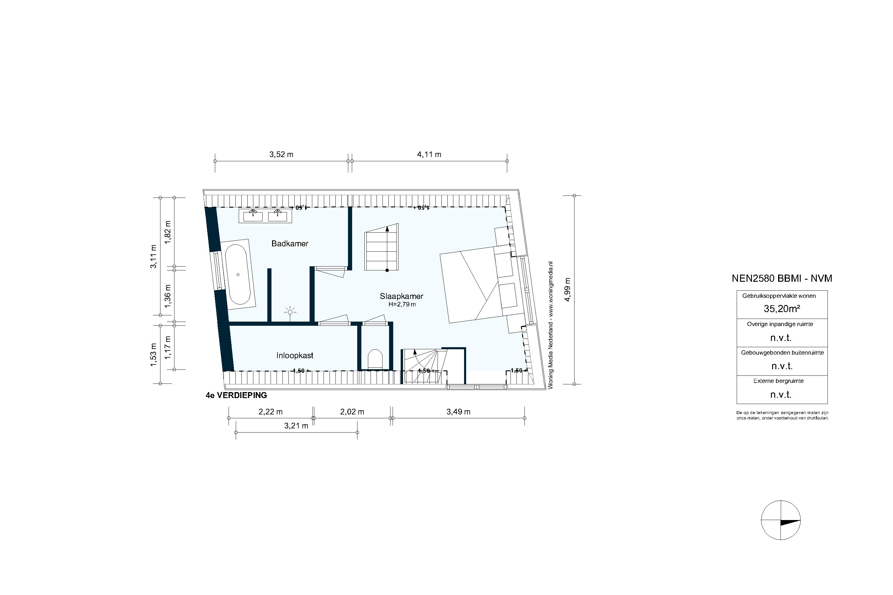
Vierde verdieping
Een ruime slaapkamer met meerdere raampartijen en prachtig uitzicht over de omgeving. Verder een badkamer (2020) met ligbad, inloopdouche en dubbele wastafel, een garderobekamer en separaat toilet.

Dakterras
Via de vierde verdieping bereikt u het royale dakterras van circa 30 m², voorzien van houten terrastegels, pergola, elektra en verlichting. Hier geniet u van panoramisch uitzicht over de stad en zon van ’s ochtends vroeg tot ’s avonds laat.

METRAGES
- Woonoppervlakte: ca. 202 m²
- Dakterras: ca. 30 m²
- Meetrapport (NEN2580) aanwezig

BIJZONDERHEDEN
- Volledig pand verdeeld over vijf woonlagen
- Twee zelfstandige wooneenheden op de begane grond en eerste verdieping, thans in gebruik als B&B
- Ideaal te combineren met kantoor, praktijkruimte, gastenverblijf of woning voor inwonende kinderen/au pair
- Goed onderhouden: buitenschilderwerk 2023, dakterras bitumen en schilderwerk vernieuwd in 2021
- Energieprestatie: label C, voorzien van dak- en vloerisolatie en deels dubbele beglazing

EIGENDOMSSITUATIE
Gelegen op eigen grond.

LIGGING EN BEREIKBAARHEID
Prinseneiland is een van de drie Westelijke Eilanden, een unieke en rustige woonomgeving op steenworp afstand van het stadscentrum. Binnen enkele minuten loopt u naar de Haarlemmerdijk en de Jordaan, met een breed aanbod aan boetieks, restaurants, cafés, supermarkten en markten. Voor cultuur en ontspanning ligt het creatieve Westerpark met de Westergas om de hoek. Met de auto bereikt u eenvoudig de ring A10 via de Haarlemmerweg of de Spaarndammertunnel. Ook het openbaar vervoer is uitstekend: bus- en tramverbindingen brengen u binnen 15 minuten naar Amsterdam Centraal.

“Deze informatie is door ons met de nodige zorgvuldigheid samengesteld. Onzerzijds wordt echter geen enkele aansprakelijkheid aanvaard voor enige onvolledigheid, onjuistheid of anderszins, dan wel de gevolgen daarvan. Alle opgegeven maten en oppervlakten zijn indicatief. Van toepassing zijn de NVM-voorwaarden.”

Kenmerken

Oppervlakte 202 m2
Aantal kamers 7
Aantal slaapkamers 3
Beschikbaar In overleg
Toon alle kenmerken

Kenmerken

Overdracht
Vraagprijs € 1.600.000,- K.K.
Status Beschikbaar
Aanvaarding In overleg
   
Bouw
Soort woonhuis Eengezinswoning, tussenwoning
Soort bouw Bestaande bouw
Bouwjaar 1903
   
Oppervlakten en inhoud
Wonen 202 m2
Perceel 60 m2
Inhoud 680 m3
   
Indeling
Aantal kamers 7 (3 slaapkamers)
Aantal badkamers 3
Aantal woonlagen 6
Voorzieningen Tv kabel, natuurlijke ventilatie
   
Energie
Energielabel C
Isolatie Dakisolatie, vloerisolatie, gedeeltelijk dubbel glas
Verwarming Cv ketel
Warm water Cv ketel
   
Buitenruimte
Ligging Aan water, aan rustige weg, in centrum, in woonwijk, vrij uitzicht, aan vaarwater

Locatie

Wilt u meer weten, of een afspraak maken?

We gebruiken uw gegevens alleen om contact met u op te kunnen nemen. Zie ook onze privacyverklaring.