Nieuwe Prinsengracht 92 2

1018 VW AMSTERDAM

Omschrijving

Unieke kans: uw eigen droomhuis creëren aan de Nieuwe Prinsengracht!

Graag bieden wij aan deze royale bovenwoning van ca. 61m² (NEN2580) aan, gelegen op de tweede van een karakteristiek grachtenpand aan de sfeervolle Nieuwe Prinsengracht. De woning wordt in “whitebox”-staat opgeleverd: de wanden zijn strak gestukt en de aansluitingen voor nutsvoorzieningen zijn aanwezig. Dit vormt een solide basis, met volop ruimte om de afwerking volledig naar eigen voorkeuren te realiseren.

De ligging is bijzonder: tussen de levendige Utrechtsestraat en de karaktervolle Plantagebuurt. Een rustige en groene plek, omringd door twee bruisende stadsdelen met een rijk aanbod aan winkels, horeca, cultuur en historie. Hier geniet u van de rust van de gracht, met de dynamiek van de stad op loopafstand.

INDELING
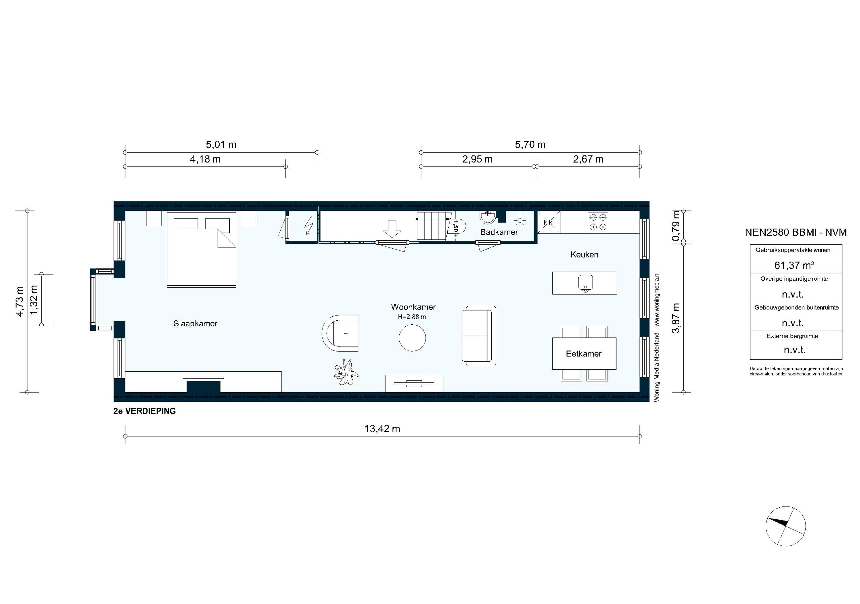
Via de gemeenschappelijke entree is de woning te betreden op de tweede verdieping. Deze indrukwekkende ruimte van meer dan 13 meter diep laat zich op talloze manieren indelen. Grote raampartijen aan zowel de voor- als achterzijde zorgen voor een overvloed aan natuurlijk licht. Aan de voorzijde bevindt zich bovendien een charmante erker, uitermate geschikt als zithoek. De woning bevindt zich in casco staat en is volledig naar eigen voorkeuren in te delen. Dankzij het oppervlakte en de vele ramen geniet u hier van een uitzonderlijk lichte en ruime woonbeleving. Tot slot is er op zolder een berging gelegen op de zolderetage van c.a. 12m².

EIGENDOMSSITUATIE
Gelegen op eigen grond.

MONUMENTALE STATUS
Het pand is aangemerkt als gemeentelijk monument.

METRAGES
- GO Wonen 61,37 m²;
- Bruto vloeroppervlak woning 68,15 m²;
- Externe bergruimte c.a. 12,42 m²*;
- Bruto inhoud woning 243,98 m³.

* Zie foto met arcering, de berging is gelegen aan de linkerzijde.

VERENIGING VAN EIGENAREN
- Actieve VvE in eigen beheer;
- De VvE bestaat uit 5 leden;
- Reservefonds aanwezig;
- MJOP aanwezig;
- Maandelijkse bijdrage c.a. €80.

VERKOOPCLAUSULES
De clausules inzake niet-zelfbewoning, NEN2580 en ouderdom zijn van toepassing.

OPLEVERING
Per direct beschikbaar.

PARKEERGELEGENHEID
Parkeren is mogelijk via het vergunningensysteem van de gemeente Amsterdam (vergunninggebied Centrum 3). Voor de meest actuele informatie over beschikbaarheid en wachttijden kunt u terecht bij de gemeente.

LOCATIE
De woning ligt aan de rustige en charmante Nieuwe Prinsengracht, een van de mooiste grachten van Amsterdam. Hier woont u in een authentieke en groene omgeving, met uitzicht op het water en toch op loopafstand van het bruisende centrum. Op korte afstand vindt u de gezellige Utrechtsestraat, met haar vele boetieks, speciaalzaken en toonaangevende restaurants. Ook theater Carré, de Hermitage en de Amstel liggen letterlijk om de hoek. Voor een wandeling of picknick is de Plantagebuurt met het Wertheimpark of de Hortus Botanicus binnen enkele minuten te bereiken. Met de fiets bent u zo op de grachtengordel of in De Pijp, waar u de levendige Albert Cuypmarkt en talloze eet- en drinkgelegenheden vindt. De bereikbaarheid is uitstekend: tram- en metrolijnen zijn op loopafstand, en met de auto rijdt u via de Weesperstraat en de IJtunnel eenvoudig richting de Ring A10.

''Deze informatie is door ons met de nodige zorgvuldigheid samengesteld. Onzerzijds wordt echter geen enkele aansprakelijkheid aanvaard voor enige onvolledigheid, onjuistheid of anderszins, dan wel de gevolgen daarvan. Alle opgegeven maten en oppervlakten zijn indicatief. Van toepassing zijn de NVM voorwaarden.''

Kenmerken

Oppervlakte 61 m2
Aantal kamers 2
Aantal slaapkamers 2
Beschikbaar In overleg
Toon alle kenmerken

Kenmerken

Overdracht
Vraagprijs € 485.000,- K.K.
Status Beschikbaar
Aanvaarding In overleg
   
Bouw
Soort appartement Bovenwoning (appartement)
Soort bouw Bestaande bouw
   
Oppervlakten en inhoud
Wonen 61 m2
Inhoud 244 m3
   
Indeling
Aantal kamers 2 (2 slaapkamers)
Aantal badkamers 1
Aantal woonlagen 1
Voorzieningen Natuurlijke ventilatie
   
Buitenruimte
Ligging Aan water, aan rustige weg, in centrum, vrij uitzicht

Locatie

Wilt u meer weten, of een afspraak maken?

We gebruiken uw gegevens alleen om contact met u op te kunnen nemen. Zie ook onze privacyverklaring.