Fokke Simonszstraat 84 2

1017 TK AMSTERDAM

Omschrijving

Recent gerenoveerd 2-kamerappartement (35 m²) in hartje Weteringbuurt!

Sfeervol, modern en volledig gerenoveerd: dit appartement heeft een lichte woonkamer met open keuken, comfortabele slaapkamer, moderne badkamer en een separate zolderkamer met wasmachineaansluiting: ideaal als werkplek of extra opslag. Gelegen op eigen grond, op een rustige locatie met alle voorzieningen van de stad binnen handbereik.

Kortom: Een compleet plaatje in het hart van de stad!

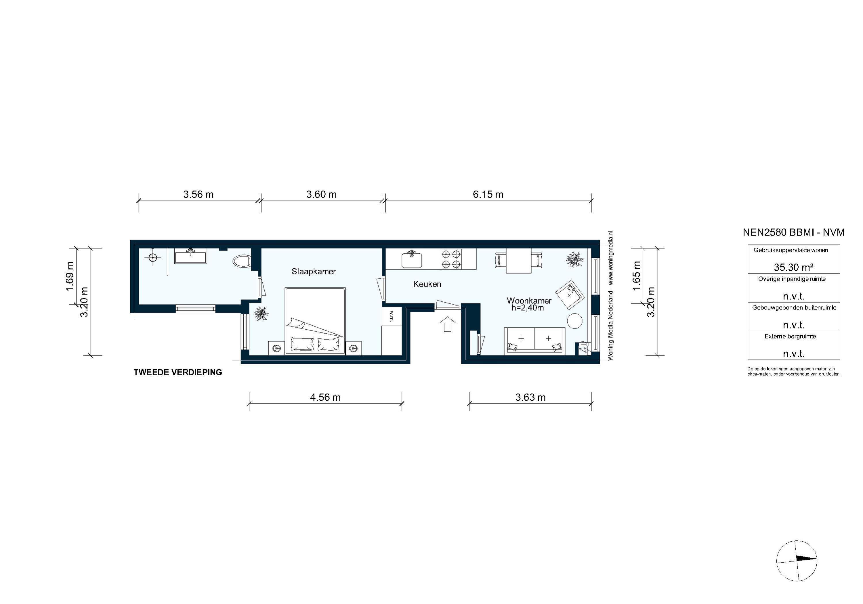
INDELING
De woning is bereikbaar via een gemeenschappelijke entree op straatniveau, met een trap naar het appartement op de tweede verdieping. Bij binnenkomst stap je direct de lichte woonkamer met open keuken binnen. De woonkamer is voorzien van grote raampartijen aan de voorzijde met prachtig authentiek glas-in-lood.
De moderne keuken is geplaatst bij de entree en afgewerkt met matte witte frontjes en een marmerlook werkblad, compleet met inbouwapparatuur. Aan de achterzijde bevindt zich de ruime slaapkamer met wasmachineaansluiting. Vanuit de slaapkamer is de riante badkamer bereikbaar, voorzien van een inloopdouche, wastafel met meubel, toilet en cv-ketel.

Op de bovenste verdieping ligt een zolderkamer met natuurlijk daglicht, verwarming en extra opbergruimte. Deze ruimte beschikt eveneens over een wasmachineaansluiting en is uitstekend te gebruiken als werkplek of extra opslag.

VERENIGING VAN EIGENAREN (VvE)
- Kleinschalige VvE, 8 leden;
- MJOP aanwezig;
- Servicekosten € 70,- per maand.

GROND SITUATIE
- Eigen grond.

BIJZONDERHEDEN
- Rustige, centrale locatie in het centrum;
- Bouwjaar 1893;
- 35,30 m² (NEN2580)
- Tweede verdieping;
- Woonkamer met open keuken;
- 1 slaapkamer;
- Separate zolderkamer perfect te gebruiken als werkkamer;
- Recent gerenoveerd, koper wordt eerste gebruiker;
- Volledig voorzien van vloerverwarming;
- Energielabel D;
- Gelegen op eigen grond;
- Niet zelfbewoningsclausule is van toepassing;
- Oplevering in overleg, kan snel.

LOCATIE
Fokke Simonszstraat 84-2 biedt een ideale woonlocatie waar rust en stedelijke dynamiek samenkomen. Op steenworp afstand vind je de Utrechtsestraat, Vijzelgracht en Prinsengracht met een breed aanbod aan winkels, boetieks, cafés en restaurants. Ook de populaire De Pijp ligt op korte afstand.
Voor de dagelijkse boodschappen en gezellige horeca zit je hier perfect: van een culinair diner bij Zoldering tot een drankje bij Café Slijterij Oosterling. Liever de iconische grachten verkennen, een rondje over de Albert Cuypmarkt of een museum bezoeken? Culturele hotspots, parken en musea zijn eenvoudig te voet of per fiets bereikbaar.
Dankzij de nabijheid van de Noord/Zuidlijn (halte Vijzelgracht) en diverse tramverbindingen is de bereikbaarheid uitstekend.

Kortom: een fantastische locatie waar rust en voorzieningen samenkomen in het hart van Amsterdam.

''Deze informatie is door ons met de nodige zorgvuldigheid samengesteld. Onzerzijds wordt echter geen enkele aansprakelijkheid aanvaard voor enige onvolledigheid, onjuistheid of anderszins, dan wel de gevolgen daarvan. Alle opgegeven maten en oppervlakten zijn indicatief. Van toepassing zijn de NVM voorwaarden.
De getoonde foto’s geven een waarheidsgetrouwe weergave van de woning. In enkele afbeeldingen is middels digitale (AI-)bewerking virtuele inrichting toegevoegd. Deze toevoegingen dienen uitsluitend ter illustratie van de gebruiks- en inrichtingsmogelijkheden.’’

Kenmerken

Oppervlakte 35 m2
Aantal kamers 2
Aantal slaapkamers 1
Beschikbaar In overleg
Toon alle kenmerken

Kenmerken

Overdracht
Vraagprijs € 395.000,- K.K.
Status Beschikbaar
Aanvaarding In overleg
   
Bouw
Soort appartement Tussenverdieping (appartement)
Soort bouw Bestaande bouw
Bouwjaar 1893
   
Oppervlakten en inhoud
Wonen 35 m2
Inhoud 111 m3
   
Indeling
Aantal kamers 2 (1 slaapkamers)
Aantal badkamers 1
Aantal woonlagen 2
Voorzieningen Natuurlijke ventilatie
   
Energie
Energielabel D
Verwarming Vloerverwarming geheel
Warm water Cv ketel
   
Buitenruimte
Ligging Aan rustige weg, in centrum

Locatie

Wilt u meer weten, of een afspraak maken?

We gebruiken uw gegevens alleen om contact met u op te kunnen nemen. Zie ook onze privacyverklaring.