Blasiusstraat 11 3

1091 CJ AMSTERDAM

Omschrijving

Graag bieden wij u aan, dit prachtige en goed onderhouden bovenhuis gelegen aan de Blasiusstraat van ca. 113 m². Het appartement beschikt over twee ruime slaapkamers en een heerlijk dakterras met panoramisch uitzicht over de stad. De gehele woning heeft een nette afwerking met een eikenhouten vloer, gestucte wanden en plafonds met inbouwspots en sierlijsten. Het pand is intern en extern goed onderhouden en in 2014 voorzien van nieuwe fundering.

Kortom, een bijzonder sfeervol appartement gelegen op eigen grond dat u gezien moet hebben!

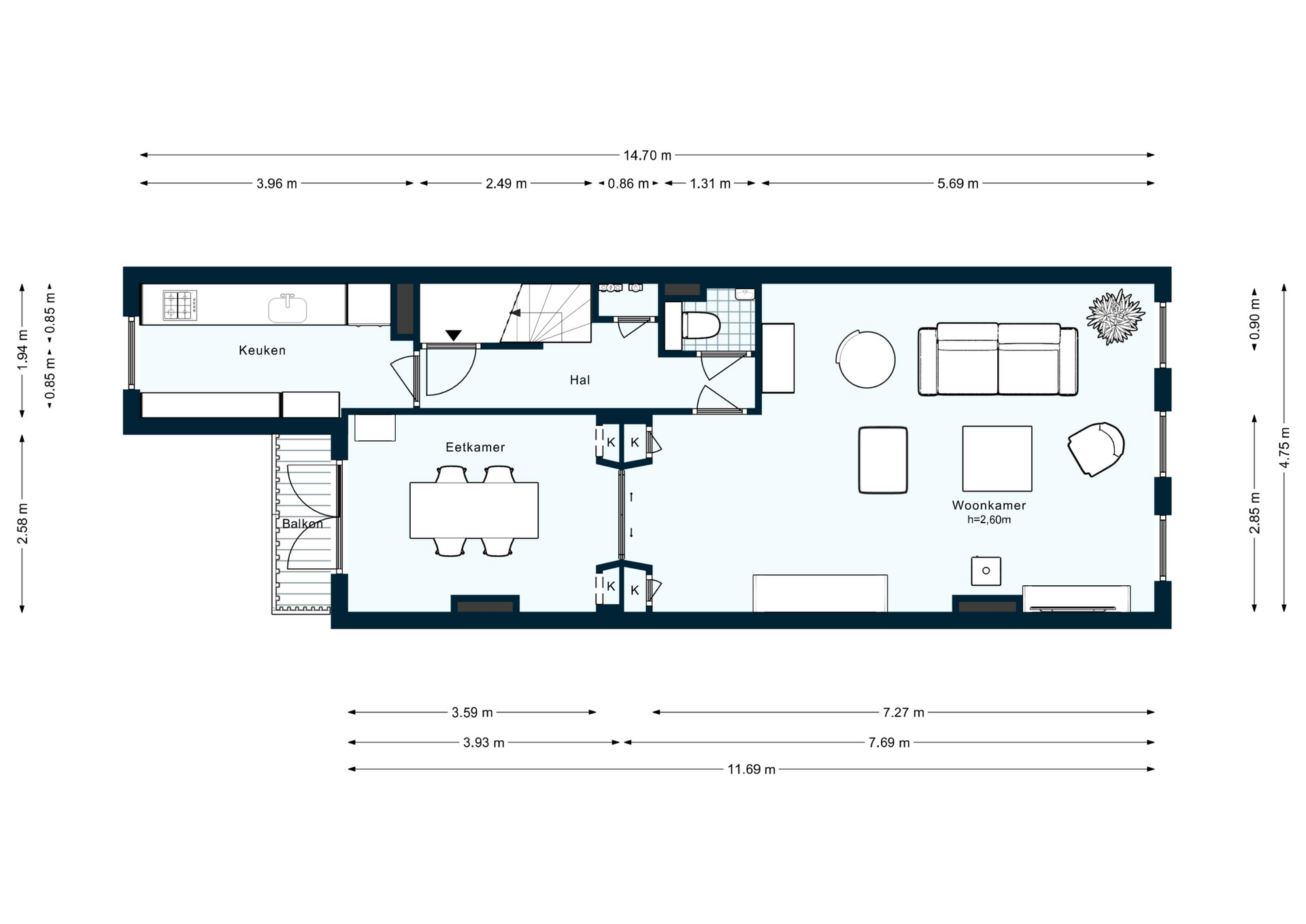
INDELING
Via de gemeenschappelijke ingang bereikt u de derde verdieping. Daar vindt u de entree, een hal en een toilet met een fonteintje. Aan de achterzijde bevindt zich de moderne keuken uit 2019 welke beschikt over diverse inbouwapparatuur, waaronder een inductiekookplaat met roestvrijstalen afzuigkap, een oven, een koelkast, een vernieuwde vaatwasser en blad met daarnaast veel opbergruimte. De ruime woonkamer ligt aan de voorzijde en krijgt veel natuurlijk licht door de drie grote ramen. Deze kamer is voorzien van ensuite inbouwkasten en een houtkachel die elk jaar wordt geveegd en het certificaat is aanwezig. De eetkamer, gesitueerd aan de achterzijde, beschikt over een heerlijk balkon en is ook voorzien van inbouwkasten.

Via een vaste trap bereikt u de vierde verdieping. Hier vindt u een overloop met prachtige inbouwkasten, een grote slaapkamer aan de voorzijde en een grote slaapkamer aan de achterzijde met inbouwkast. De badkamer, voorzien van vloerverwarming, beschikt over een ruime inloopdouche, dubbele wastafel en mechanische ventilatie. Op de overloop is er een tweede toilet, een CV-kast, een ruimte voor de wasmachine en droger en een aparte berging.
Met de vaste trap bereikt u het dakterras. Dit dakterras biedt een prachtig uitzicht over de stad.

EIGENDOMSSITUATIE
Gelegen op eigen grond.

FUNDERING
De fundering is vernieuwd in 2014.

BIJZONDERHEDEN
- Badkamer en toilet gerenoveerd (2021);
- Nieuwe houten vloer (2021);
- Sier plafonds (door: ’t Geveltje) en Glas-in-lood in de ensuite deuren (door: Amsterdamse Glas-in-lood zetterij) (2022);
- Tv meubel en inbouwkasten in gang en slaapkamer (2023);
- Nieuwe vaatwasser (2021) en nieuw keukenblad (2023);
- Nieuwe elektrische radiator in de woonkamer (2023);
- Goed functionerende houtkachel met veegcertificaat.

METRAGES
- GO Wonen 113 m²;
- Bruto vloeroppervlak woning 128 m²;
- Bruto inhoud woning 374 m³.

VERENIGING VAN EIGENAREN
- Actieve en gezonde VvE;
- VvE in eigen beheer;
- Maandelijkse VvE bijdrage € 120,-;
- Meerjaren onderhoudsplan aanwezig.

OPLEVERING
Vanaf medio juli beschikbaar.

PARKEERGELEGENHEID
Parkeren kan openbaar (betaald) en d.m.v. het vergunningstelsel.

LOCATIE
De Blasiusstraat is een rustige zijstraat van de Weesperzijde en zeer centraal gelegen. Oosterpark, supermarkten, restaurants, sportfaciliteiten, zijn om de hoek. Met de fiets ben je binnen 5 minuten in De Pijp en binnen 10 minuten in het centrum. De dichtstbijzijnde metrohalte ligt op slechts 200 meter afstand, de Wibautstraat (lijnen 51, 53 en 54). Gemakkelijke toegang tot Amsterdam Noord, Amsterdam Zuid Oost of Centraal Station. De ringweg A-10 van de A10 is met de auto binnen vijf minuten te bereiken. Dankzij de uitstekende bereikbaarheid van het openbaar vervoer (tram, metro) en de nabijheid van belangrijke verbindingswegen, kan de locatie van de woning als perfect worden beschouwd. U heeft moeiteloze toegang tot alle delen van de stad en kunt genieten van alles wat Amsterdam te bieden heeft, van culturele evenementen tot een bruisend nachtleven.

Deze informatie is door ons met de nodige zorgvuldigheid samengesteld. Onzerzijds wordt echter geen enkele aansprakelijkheid aanvaard voor enige onvolledigheid, onjuistheid of anderszins, dan wel de gevolgen daarvan. Alle opgegeven maten en oppervlakten zijn indicatief. Van toepassing zijn de NVM voorwaarden.

Kenmerken

Oppervlakte 113 m2
Aantal kamers 4
Aantal slaapkamers 2
Buitenruimte Balkon, dakterras
Beschikbaar In overleg
Toon alle kenmerken

Kenmerken

Overdracht
Vraagprijs € 925.000,- K.K.
Status Verkocht
Aanvaarding In overleg
   
Bouw
Soort appartement Bovenwoning (appartement)
Soort bouw Bestaande bouw
   
Oppervlakten en inhoud
Wonen 113 m2
Inhoud 374 m3
   
Indeling
Aantal kamers 4 (2 slaapkamers)
Aantal badkamers 1
Aantal woonlagen 1
Voorzieningen Mechanische ventilatie
   
Energie
Energielabel D
Isolatie Vloerisolatie, dubbel glas
Verwarming Cv ketel, open haard, elektrische verwarming
Warm water Cv ketel
   
Buitenruimte
Ligging Aan rustige weg, in centrum, in woonwijk, vrij uitzicht, beschutte ligging
Balkon/dakterras Balkon, dakterras

Locatie

Wilt u meer weten, of een afspraak maken?

We gebruiken uw gegevens alleen om contact met u op te kunnen nemen. Zie ook onze privacyverklaring.