Alexander Boersstraat 3

1071 KT AMSTERDAM

Omschrijving

Geheel woonhuis aan de charmante Alexander Boersstraat!

In het hart van het Museumkwartier staat dit karaktervolle familiehuis van c.a. 168m². Gelegen aan de rustige Alexander Boersstraat biedt dit huis een zeldzame combinatie van sereniteit en stedelijk gemak. Op slechts enkele passen van het Concertgebouw en het Museumplein woont u midden tussen cultuur, historie en elegantie, met scholen, winkels en restaurants binnen handbereik.

Een bijzondere plek voor wie het stadsleven wil ervaren in alle rust — een echt familiehuis op een van de mooiste locaties van Amsterdam. Het pand is gelegen op eigen grond en beschikbaar in overleg.

INDELING
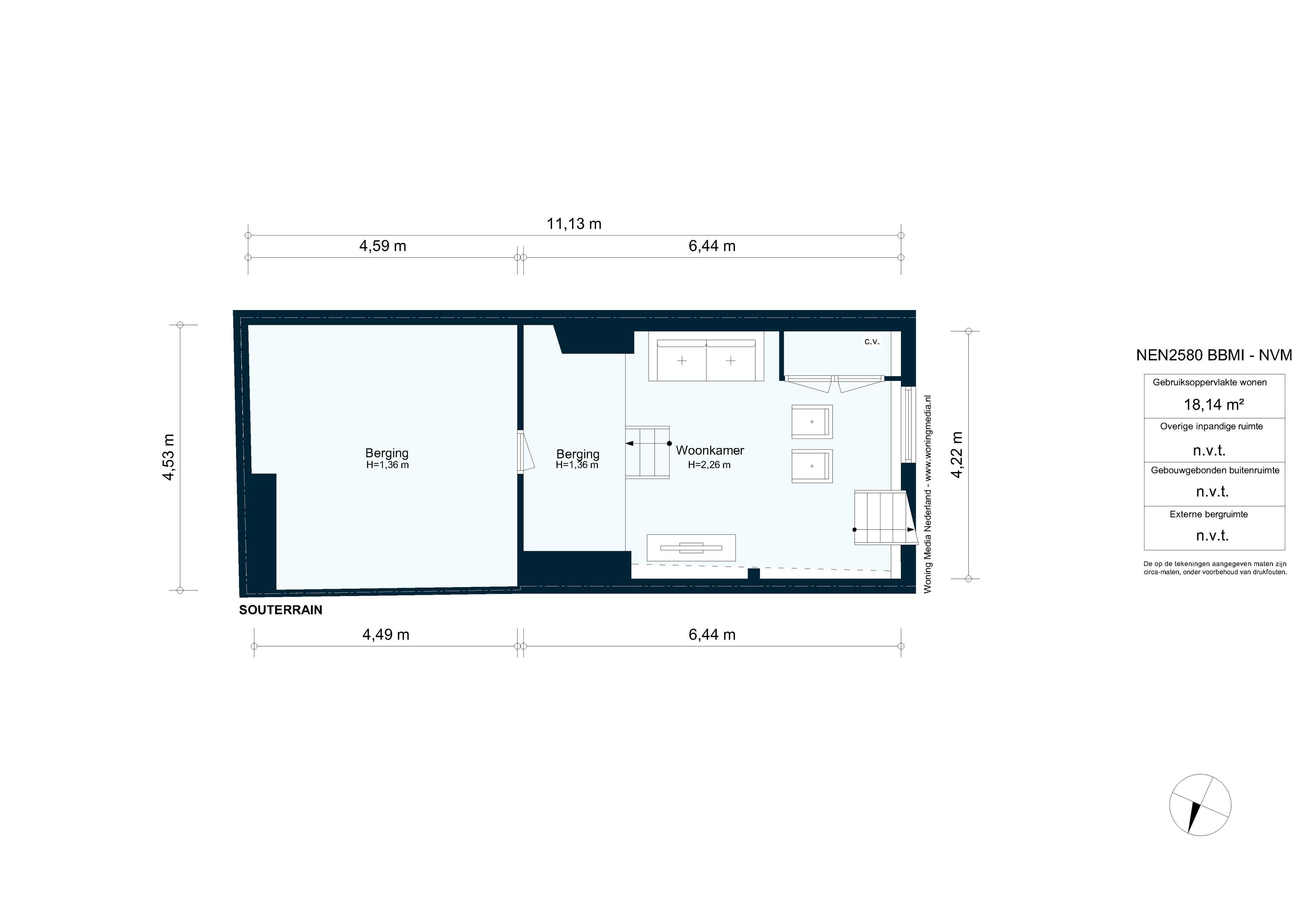
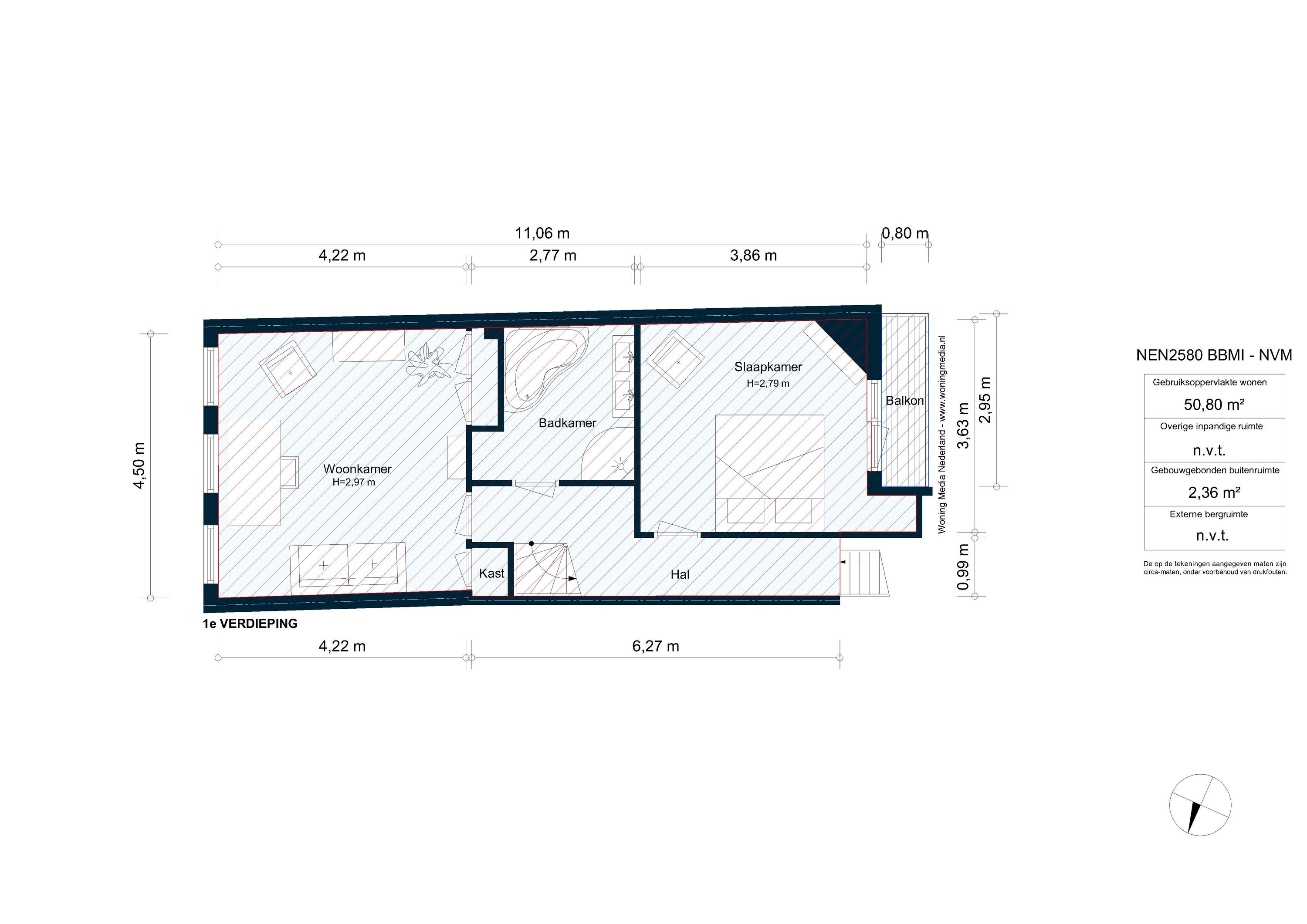
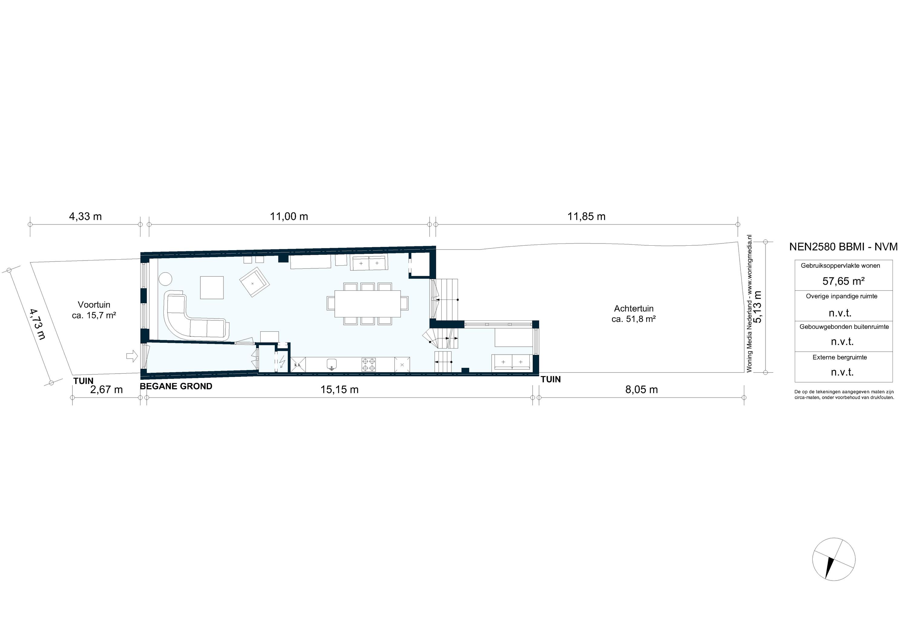
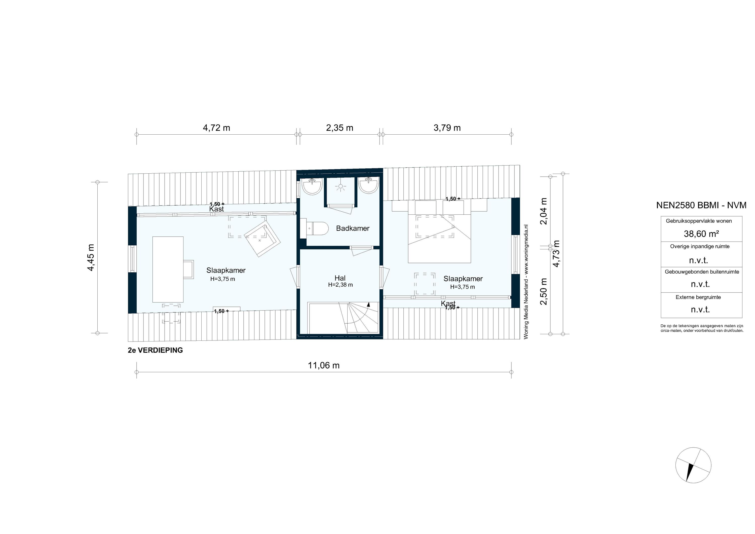
Via de charmante voortuin bereikt u de entree op de begane grond. In de hal is voldoende ruimte voor een garderobe, waarna u binnenstapt in de sfeervolle living. Hier bevindt u zich centraal in de woonkamer, met aan de voorzijde een rustieke zithoek en aan de achterzijde de royale leefkeuken. De ruimte kenmerkt zich door de hoge plafonds met verfijnde ornamenten, de klassieke houten vloer en de luiken voor de ramen die zorgen voor een tijdloze uitstraling. De plafondhoogte geeft de etage een luchtig en ruimtelijk gevoel, terwijl de natuurlijke lichtinval het geheel een warme sfeer verleent. Aan de achterzijde openen de dubbele deuren naar de riante tuin van circa 58m², bijna 12 meter diep – een heerlijke plek voor lange zomerdagen en sfeervolle avonden. De leefkeuken is voorzien van diverse inbouwapparatuur en biedt volop ruimte voor gezellige diners met familie of vrienden. Via de stijlvolle trap aan de achterzijde bereikt u een aangename tuinkamer, ideaal als thuiskantoor of studeerkamer. Het souterrain, met een stahoogte van 2.26 meter, is verrassend veelzijdig. De voorzijde is momenteel in gebruik als berging, terwijl het achterste gedeelte is ingericht als TV-/speelkamer – een prettige, besloten ruimte met veel potentie. Met de juiste vergunning(en) bestaat hier de mogelijkheid extra woonoppervlakte te creëren. Op de eerste verdieping bevinden zich twee goed bemeten slaapkamers, gescheiden door een royale badkamer. Beide kamers zijn ruim van formaat, bijzonder rustig gelegen en rijk aan authentieke details. De inbouwkasten zorgen voor praktische bergruimte en dragen bij aan het verzorgde geheel. De trap leidt verder naar de tweede verdieping, waar zich eveneens twee goed bemeten slaapkamers bevinden – één aan de voorzijde en één aan de achterzijde – met daartussen een tweede badkamer. De kamers beschikken ook hier over inbouwkasten en bieden een fijn gevoel van rust en privacy.

METRAGES
- Bruto vloeroppervlakte: c.a. 233,86 m²;
- Woonruimte (GO Wonen): c.a. 167,89m²;
- Bruto inhoud: c.a. 690,52m³;
- Buitenruime (Voor- en achtertuin): c.a. 67,5m².

EIGENDOMSSITUATIE
Gelegen op eigen grond.

ENERGIELABEL
Energielabel E.

VERKOOPCLAUSULE
Ouderdomsclausule is van toepassing.

OPLEVERING
Beschikbaar in overleg, mogelijk op korte termijn.

PARKEERGELEGENHEID
Openbaar parkeren is mogelijk via het vergunningensysteem van de gemeente Amsterdam (vergunningsgebied Zuid 8.1 – Museumkwartier). Er geldt doorgaans een wachttijd voor een parkeervergunning; de actuele status is op te vragen via de gemeente Amsterdam.

LOCATIE
De Alexander Boersstraat ligt in het hart van het prestigieuze Museumkwartier, een van de meest gewilde woonwijken van Amsterdam. Deze statige straat vormt een oase van rust midden in de stad, met op de voorgrond het wereldberoemde Concertgebouw – een uitzicht dat zelden zo Amsterdams én zo bijzonder is. Hier woont u te midden van cultuur, stijl en elegantie. Binnen enkele minuten wandelt u naar het Museumplein, waar het Rijksmuseum, het Van Gogh Museum en het Stedelijk Museum samenkomen. Voor een wandeling of een moment van ontspanning ligt het Vondelpark letterlijk om de hoek. De Willemsparkweg biedt een verfijnde selectie aan horeca en speciaalzaken. U geniet hier van een lunch bij Café Keyzer, een glas wijn bij Brasserie De Joffers, of een goede koffie bij CoffeeDistrict. Ook de Cornelis Schuytstraat ligt vlakbij, bekend om haar luxe boetieks, patisseries en authentieke buurtgevoel. De bereikbaarheid is uitstekend: trams en bussen richting het Centraal Station, Zuidas en Schiphol vertrekken op loopafstand, terwijl u met de auto via de A10 snel de stad uit bent. Kortom, een locatie die rust en elegantie combineert met alles wat de stad te bieden heeft – een zeldzame balans in het hart van Amsterdam.

“Deze informatie is met de nodige zorgvuldigheid samengesteld. Er wordt echter geen aansprakelijkheid aanvaard voor enige onvolledigheid, onjuistheid of de gevolgen daarvan. Alle opgegeven maten en oppervlakten zijn indicatief. Van toepassing zijn de NVM-voorwaarden.”

Kenmerken

Oppervlakte 168 m2
Aantal kamers 7
Aantal slaapkamers 5
Buitenruimte Achtertuin
Beschikbaar In overleg
Toon alle kenmerken

Kenmerken

Overdracht
Vraagprijs € 2.100.000,- K.K.
Status Beschikbaar
Aanvaarding In overleg
   
Bouw
Soort woonhuis Eengezinswoning, geschakelde woning
Soort bouw Bestaande bouw
   
Oppervlakten en inhoud
Wonen 168 m2
Perceel 133 m2
Inhoud 690 m3
   
Indeling
Aantal kamers 7 (5 slaapkamers)
Aantal badkamers 2
Aantal woonlagen 4
Voorzieningen Mechanische ventilatie, dakraam, glasvezel kabel, balansventilatie, natuurlijke ventilatie
   
Energie
Energielabel E
Isolatie Dakisolatie, muurisolatie, vloerisolatie, dubbel glas, grotendeels dubbelglas
Verwarming Cv ketel
Warm water Cv ketel
   
Buitenruimte
Ligging Aan rustige weg, in woonwijk
Balkon/dakterras Achtertuin

Locatie

Wilt u meer weten, of een afspraak maken?

We gebruiken uw gegevens alleen om contact met u op te kunnen nemen. Zie ook onze privacyverklaring.