Agter Kampen 2

1261 RB BLARICUM

Omschrijving

Aan een rustige, onverharde weg, verscholen in het groen en grenzend aan de uitgestrekte weilanden van Blaricum, ligt deze royale en luxueus afgewerkte villa. Het rietgedekte woonhuis combineert moderne architectuur met een warme en stijlvolle uitstraling. Dankzij de vrije ligging geniet u hier van rust, ruimte en optimale privacy, terwijl voorzieningen en uitvalswegen binnen handbereik liggen.

Een exclusief familiehuis met hoogwaardige afwerking, een binnenzwembad, fitnessruimte, diverse woon- en werkvertrekken en een prachtig aangelegde tuin met meerdere terrassen en buitenhaard.

INDELING
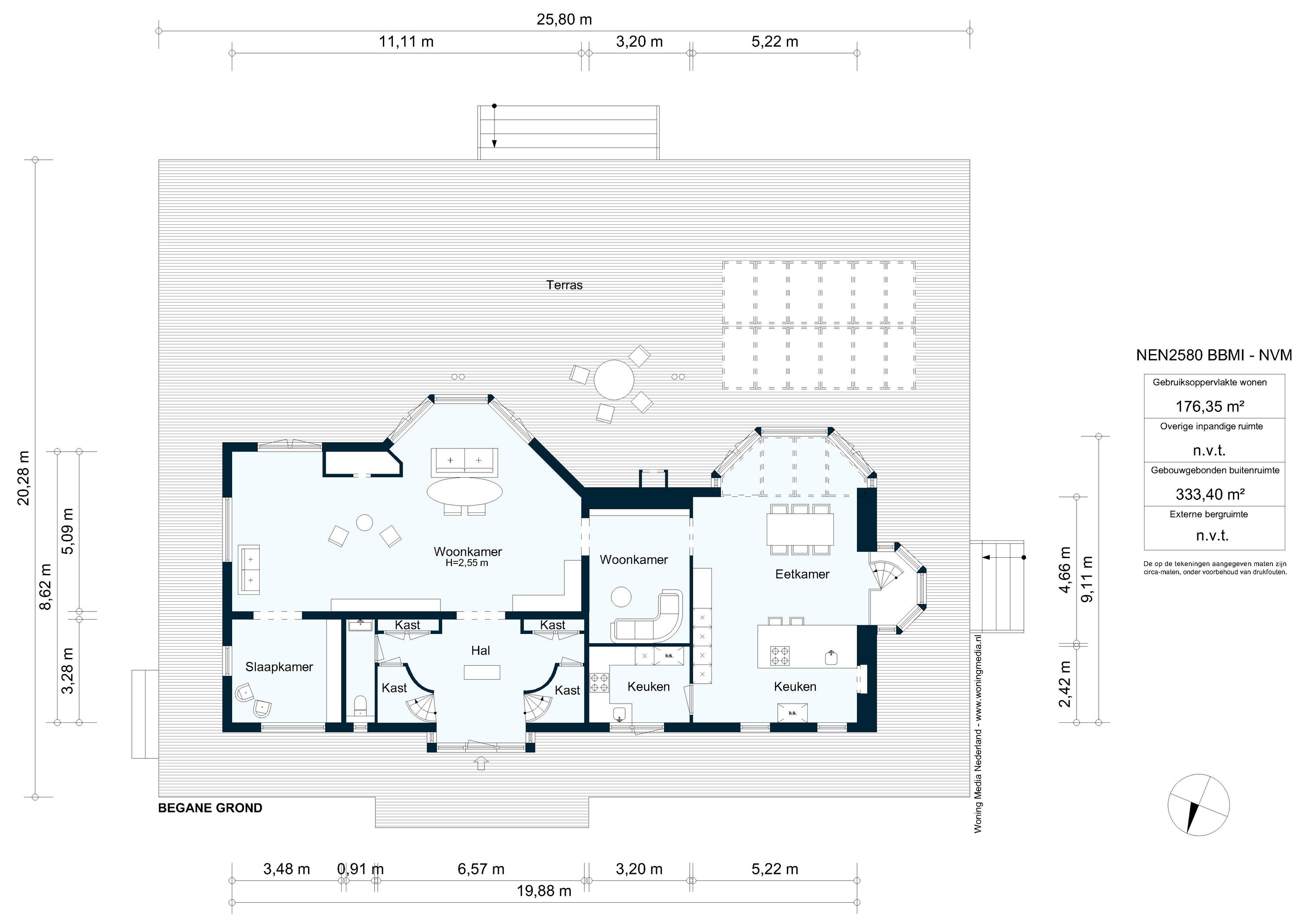
Begane grond
Via de ruime entree met vide en garderobe betreedt u de lichte living, voorzien van massief houten vloer, gashaard en dubbele openslaande deuren naar de tuin. Aansluitend bevindt zich een sfeervolle tv-/werkkamer, ideaal als kantoor of speelruimte.

De riante woonkeuken is het hart van het huis. Met twee gashaarden, een groot kookeiland en hoogwaardige inbouwapparatuur is dit een droom voor de kookliefhebber. Vanuit hier heeft u prachtig uitzicht over de tuin en directe toegang tot het terras en de bijkeuken. Tevens bereikt u vanuit de keuken het inpandige zwembad en de fitnessruimte beide gerenoveerd in 2025.

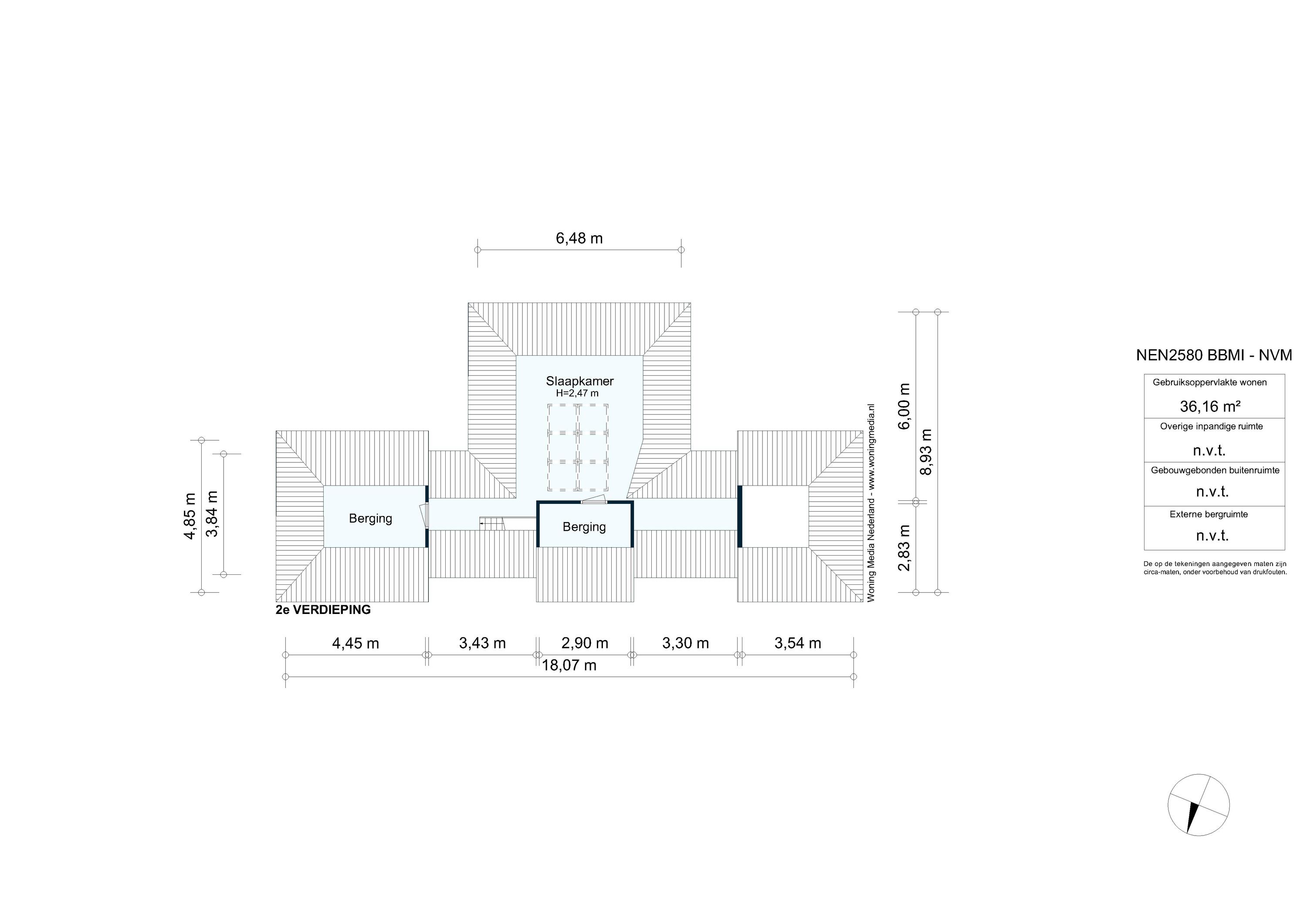
Eerste verdieping en tweede verdieping
Het dubbele trappenhuis leidt naar een royale overloop met vide. Hier bevindt zich de masterbedroom met luxe badkamer ensuite en een ruime kleedkamer. Daarnaast is er een tweede slaapkamer met eigen badkamer. Via de vaste trap bereikt u een derde slaapkamer, gesitueerd onder de kap.

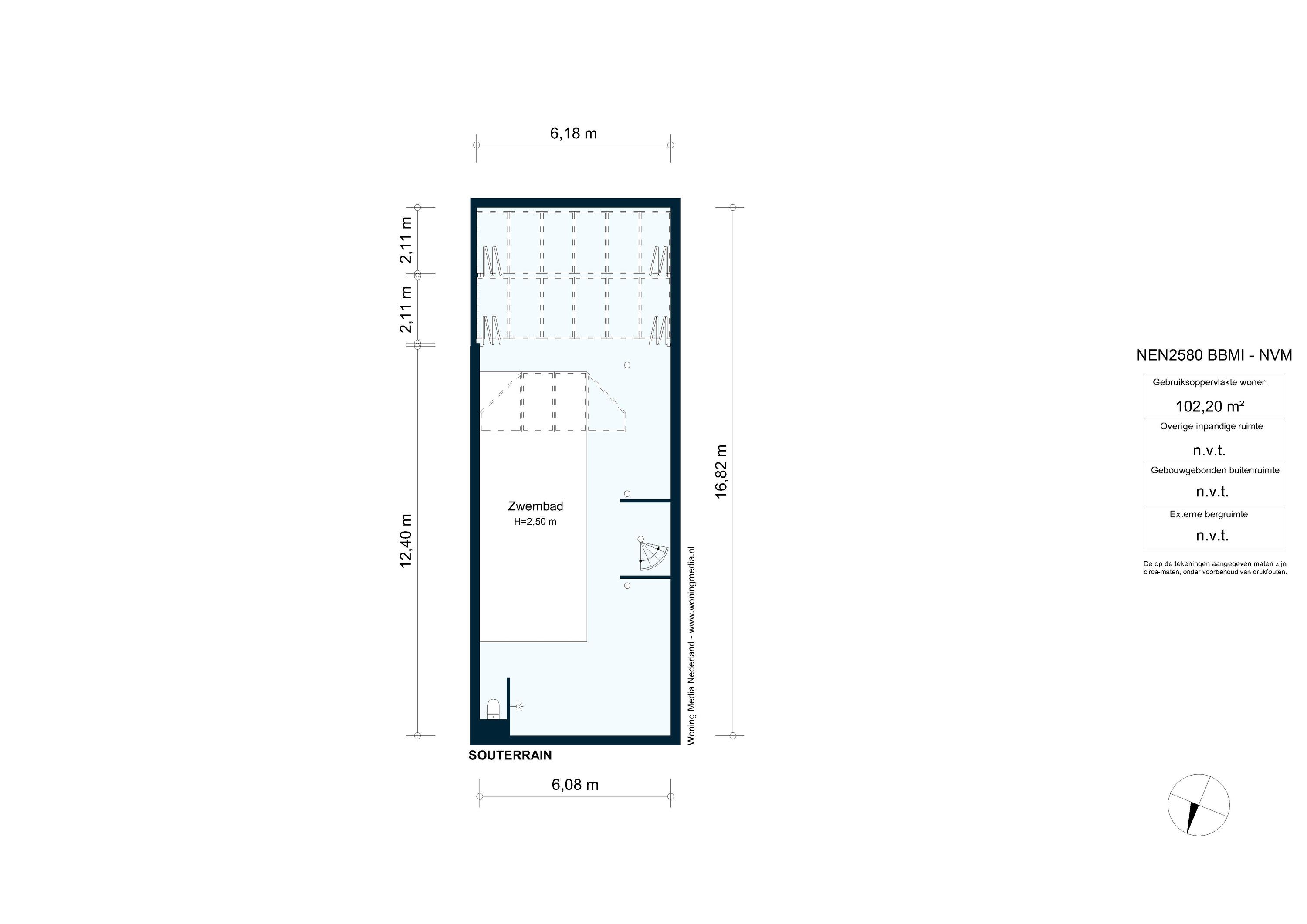
Souterrain
Het souterrain is verrassend licht dankzij glazen plafonds en biedt directe toegang tot de tuin. Hier vindt u een exclusief rvs-zwembad (voorzien van ozon-installatie), een fitnessruimte, douche, loungehoek en een extra kitchenette. Dit maakt de ruimte uitermate geschikt voor ontspanning én entertainment.

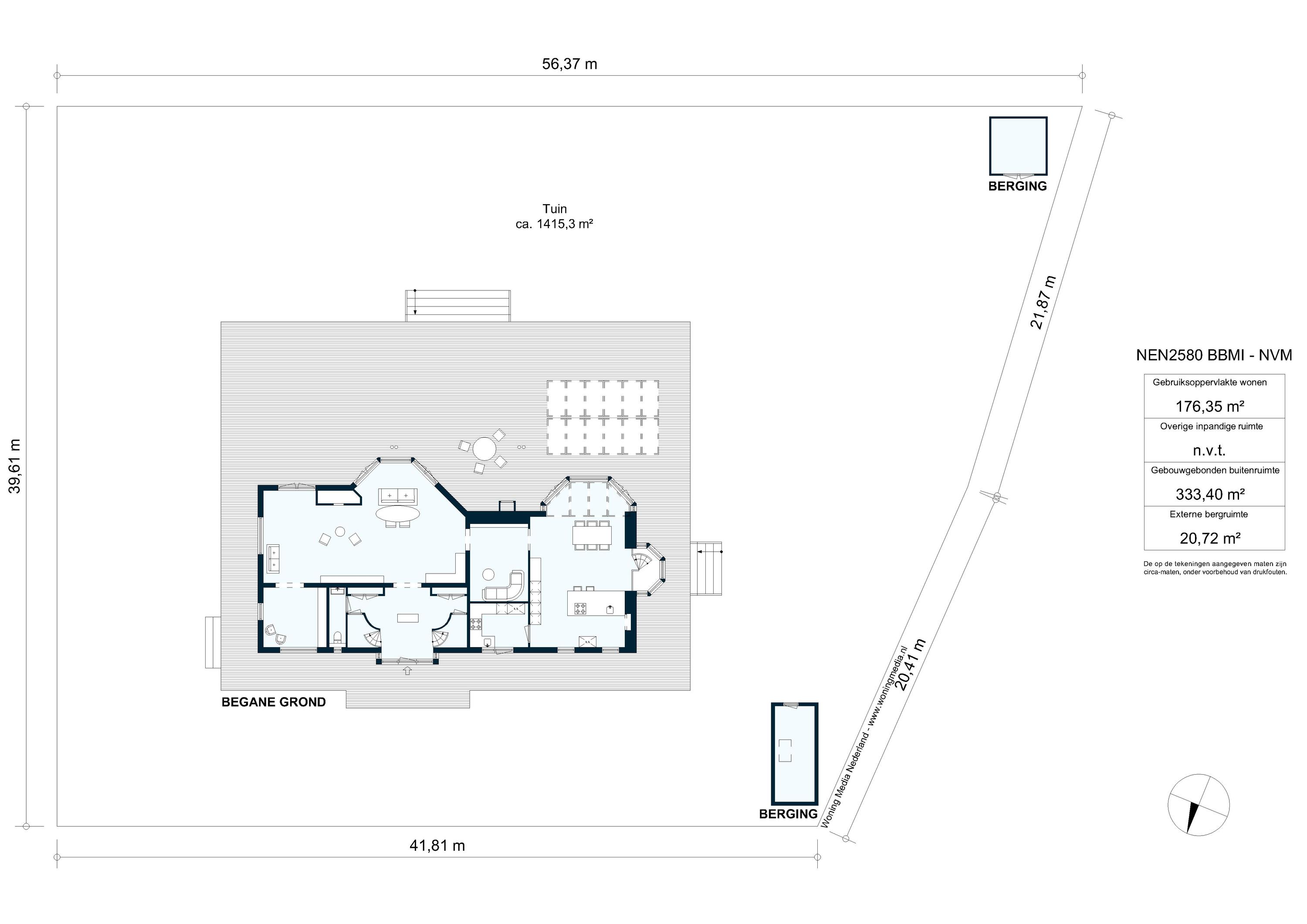
TUIN
De fraai aangelegde tuin rondom de villa biedt volledige privacy en meerdere terrassen op het zuidwesten. Een buitenhaard, tuinhuis, carport en vrijstaande berging maken het geheel compleet.

BIJZONDERHEDEN
- Hoogwaardige, rietgedekte villa op royale kavel;
- Vrij uitzicht over de weilanden;
- Binnenzwembad en fitnessruimte in souterrain;
- Energielabel A;
- Meerdere gashaarden en massief houten vloeren;
- Diverse woon-/werkvertrekken;
- Masterbedroom met kleedkamer en badkamer ensuite;
- Fraai aangelegde tuin met terrassen, buitenhaard en tuinhuis;
- Airconditioning;
- Carport en vrijstaande berging;
- Optimale privacy;
- Oplevering in overleg.

METRAGES
- NEN2580 meetrapport aanwezig
- Woonoppervlakte: ca. 456 m²
- Perceeloppervlakte: ca. 2.063 m²
- Inhoud woning: ca. 1651 m³

EIGENDOMSSITUATIE
Gelegen op eigen grond.

LIGGING EN BEREIKBAARHEID
De woning bevindt zich op een idyllische plek aan de rand van Blaricum, in een lommerrijke omgeving met vrij uitzicht over de landerijen. Ondanks de beschutte ligging zijn uitvalswegen naar de A1 en A27 binnen enkele minuten bereikbaar. Het dorpscentrum met winkels, restaurants en scholen ligt dichtbij, evenals natuurgebieden en sportvoorzieningen. Hier combineert u wonen in alle rust met de luxe van bereikbaarheid en voorzieningen.

Deze informatie is door ons met de nodige zorgvuldigheid samengesteld. Onzerzijds wordt echter geen enkele aansprakelijkheid aanvaard voor enige onvolledigheid, onjuistheid of anderszins, dan wel de gevolgen daarvan. Alle opgegeven maten en oppervlakten zijn indicatief. Van toepassing zijn de NVM-voorwaarden.

Kenmerken

Oppervlakte 456 m2
Aantal kamers 8
Aantal slaapkamers 5
Buitenruimte Achtertuin, balkon
Beschikbaar In overleg
Toon alle kenmerken

Kenmerken

Overdracht
Vraagprijs € 4.200.000,- K.K.
Status Beschikbaar
Aanvaarding In overleg
   
Bouw
Soort woonhuis Villa, vrijstaande woning
Soort bouw Bestaande bouw
Bouwjaar 2006
   
Oppervlakten en inhoud
Wonen 456 m2
Perceel 2063 m2
Inhoud 1651 m3
   
Indeling
Aantal kamers 8 (5 slaapkamers)
Aantal badkamers 2
Aantal woonlagen 4
Voorzieningen Mechanische ventilatie, alarminstallatie, tv kabel, buitenzonwering, zwembad, airconditioning, rookkanaal, dakraam, natuurlijke ventilatie
   
Energie
Energielabel A
Isolatie Volledig geisoleerd
Verwarming Cv ketel, open haard
Warm water Cv ketel, elektrische boiler eigendom
   
Buitenruimte
Ligging Aan bosrand, aan rustige weg, in bosrijke omgeving
Balkon/dakterras Achtertuin, balkon

Locatie

Wilt u meer weten, of een afspraak maken?

We gebruiken uw gegevens alleen om contact met u op te kunnen nemen. Zie ook onze privacyverklaring.