Amsteldijk 32 1

1074 HT AMSTERDAM

Omschrijving

(English text below)

High-end, volledig gerenoveerd appartement (ca. 128 m²) met eigen entree, drie slaapkamers en twee badkamers

Wonen op topniveau: dit recent en zeer hoogwaardig gerenoveerde appartement is tot in detail afgewerkt en wordt voor het eerst na renovatie in gebruik genomen. Een combinatie van ruimte, luxe en comfort. De woning is voorzien van een eigen entree op de begane grond en een doordachte indeling die perfect aansluit op modern stadsleven.

INDELING
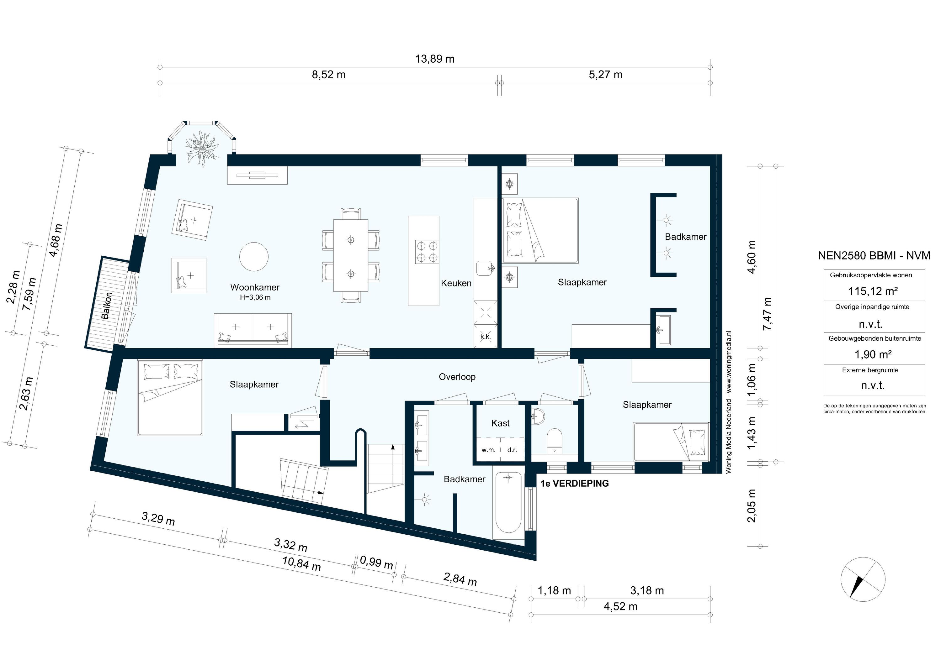
Via de eigen entree op de begane grond betreedt u het appartement, wat direct een gevoel van privacy en exclusiviteit geeft. Vanuit hier leidt de trap naar de eerste verdieping, waar de woonverdieping zich ontvouwt. De overloop opent naar een indrukwekkende leefruimte, waar licht en ruimte samenkomen. Aan de voorzijde bevindt zich de royale woonkamer met een fraaie plafondhoogte en grote raampartijen, wat zorgt voor een aangename lichtinval en een open karakter. De woonkamer vloeit naadloos over in de luxe open keuken. De keuken is uitgevoerd met hoogwaardige inbouwapparatuur (bestaande uit o.a. een combi oven/magnetron, Bora inductiekookplaat, wijnklimaatkast) en een stijlvol kookeiland, ideaal voor zowel dagelijks gebruik als het ontvangen van gasten. De eetruimte bevindt zich centraal in de woning en vormt een natuurlijke verbinding tussen wonen en koken. De woonkamer beschikt over zeer fraai uitzicht over de Amstel en karaterstieke Weesperzijde. Aan de achterzijde ligt de hoofdslaapkamer, ruim van opzet en voorzien van een en-suite badkamer met hoogwaardige afwerking, inclusief (dubbele) inloopdouche en wastafelmeubel. Via de overloop zijn de overige vertrekken bereikbaar. Hier bevinden zich nog twee volwaardige slaapkamers, beide goed van formaat en naar in te richten als slaap-, werk- of logeerkamer. De badkamer is eveneens luxe uitgevoerd en beschikt over een ligbad, separate douche en dubbele wastafel. Daarnaast is er een separaat toilet en een praktische bergruimte met aansluitingen voor wasmachine en droger. Tot slot beschikt de woning over een goed bemeten fietsenberging op de begane grond.

HUURVOORWAARDEN
- Kale huurprijs bedraagt €4.000 per maand;
- Minimale huurperiode 24 maanden;
- Geen delers/studenten toegestaan;
- Inkomenseis van 3x kale huurprijs;
- Borgstelling van twee maanden kale huur.

LOCATIE
Wonen aan de Amsteldijk op deze locatie staat synoniem voor rust en verfijning, midden in de stad. De Amsteldijk biedt een zeldzame combinatie van vrij uitzicht over het water, een groene omgeving en een hoogwaardige woonbeleving, met alle dynamiek van Amsterdam binnen handbereik. Op korte afstand bevindt zich De Pijp, een van de meest gewilde en levendige stadsdelen van Amsterdam. Hier komt een hoogwaardig aanbod aan restaurants, stijlvolle cafés en speciaalzaken samen, met de Albert Cuypmarkt als iconisch middelpunt. De wijk ademt energie en internationale allure. Aan de overzijde van de Amstel ligt de Weesperzijde, bekend om haar elegante karakter en de populaire terrassen aan het water. Dit is een plek waar rust, kwaliteit en gastronomie samenkomen. Ook Amsterdam-Oost is snel bereikbaar en ontwikkelt zich tot een toonaangevend stadsdeel met een sterke mix van cultuur, culinaire hotspots en creatieve concepten, onder andere rondom het Beukenplein en de Wibautstraat. Het centrum bevindt zich op enkele minuten afstand, met de Utrechtsestraat als een van de meest prestigieuze winkelstraten van de stad. Hier vindt u een verfijnde selectie aan boetieks, delicatessenzaken en hoogwaardige restaurants. De bereikbaarheid is uitstekend, met diverse openbaar vervoersverbindingen in de directe omgeving en een snelle aansluiting op de ring A10. Een uitzonderlijke locatie waar wonen aan het water, luxe en stedelijke dynamiek naadloos samenkomen.

''Deze informatie is door ons met de nodige zorgvuldigheid samengesteld. Onzerzijds wordt echter geen enkele aansprakelijkheid aanvaard voor enige onvolledigheid, onjuistheid of anderszins, dan wel de gevolgen daarvan. Alle opgegeven maten en oppervlakten zijn indicatief. Van toepassing zijn de NVM voorwaarden.''

-----------------------------------------------------------------------------------------------------------------

High-end, fully renovated apartment (approx. 128 sq.m.) with private entrance, three bedrooms and two bathrooms

Living at the highest level: this recently and exceptionally renovated apartment has been finished down to the finest detail and is being occupied for the first time after renovation. A perfect combination of space, luxury, and comfort. The property features a private entrance on the ground floor and a thoughtfully designed layout that seamlessly aligns with modern city living.

LAYOUT
Through the private entrance on the ground floor, the apartment is accessed, immediately offering a sense of privacy and exclusivity. From here, the staircase leads to the first floor, where the living level unfolds. The landing opens into an impressive living space where light and volume come together beautifully. At the front, the spacious living room features elegant ceiling heights and large windows, creating an abundance of natural light and an open atmosphere. The living area flows seamlessly into the luxurious open-plan kitchen. The kitchen is equipped with high-end built-in appliances (including a combination oven/microwave, Bora induction hob, and wine climate cabinet) and a stylish kitchen island, ideal for both everyday use and entertaining guests.

The dining area is centrally positioned within the home, forming a natural connection between living and cooking. The living room offers stunning views over the Amstel River and the characteristic Weesperzijde.

At the rear, the generously sized master bedroom features an en-suite bathroom finished to a high standard, including a (double) walk-in shower and vanity unit. The landing provides access to the remaining rooms, including two additional well-proportioned bedrooms, suitable as bedrooms, home offices, or guest rooms. The second bathroom is also luxuriously appointed and features a bathtub, separate shower, and double washbasin.

Additionally, there is a separate toilet and a practical storage room with connections for a washing machine and dryer. The property also benefits from a well-sized bicycle storage on the ground floor.

RENTAL CONDITIONS
- Base rent: €4,000 per month;
- Minimum rental period: 24 months;
- No sharing tenants/students allowed;
- Income requirement: 3x the base rent;
- Security deposit: two months’ base rent.

LOCATION
Living on the Amsteldijk at this location is synonymous with tranquility and refinement, right in the heart of the city. The Amsteldijk offers a rare combination of unobstructed water views, a green setting, and a premium residential experience, with all the vibrancy of Amsterdam within easy reach.

Within close proximity lies De Pijp, one of Amsterdam’s most sought-after and lively districts. Here, a high-quality selection of restaurants, stylish cafés, and specialty shops converge, with the iconic Albert Cuyp Market at its center. The neighborhood exudes energy and international appeal.

Across the Amstel lies the Weesperzijde, known for its elegant character and popular waterside terraces—a place where tranquility, quality, and gastronomy meet. Amsterdam East is also easily accessible and is rapidly developing into a leading urban district, offering a strong mix of culture, culinary hotspots, and creative concepts, particularly around Beukenplein and Wibautstraat.

The city center is just minutes away, with the Utrechtsestraat as one of the most prestigious shopping streets in Amsterdam, featuring a refined selection of boutiques, delicatessens, and high-end restaurants. Accessibility is excellent, with multiple public transport connections nearby and quick access to the A10 ring road. An exceptional location where waterfront living, luxury, and urban dynamics come together seamlessly.

DISCLAIMER
This information has been compiled with due care. However, no liability is accepted for any incompleteness, inaccuracies, or otherwise, nor for the consequences thereof. All stated measurements and surface areas are indicative. The NVM terms and conditions apply.

Kenmerken

Oppervlakte 128 m2
Aantal kamers 4
Aantal slaapkamers 3
Buitenruimte Balkon
Beschikbaar In overleg
Toon alle kenmerken

Kenmerken

Overdracht
Huurprijs € 4.000,- per maand
Status Beschikbaar
Aanvaarding In overleg
   
Bouw
Soort appartement Bovenwoning (appartement)
Soort bouw Bestaande bouw
Bouwjaar 1880
   
Oppervlakten en inhoud
Wonen 128 m2
Inhoud 569 m3
   
Indeling
Aantal kamers 4 (3 slaapkamers)
Aantal badkamers 1
Aantal woonlagen 2
Voorzieningen Mechanische ventilatie, tv kabel, frans balkon, balansventilatie, natuurlijke ventilatie
   
Energie
Energielabel A
Isolatie Muurisolatie, vloerisolatie, dubbel glas, volledig geisoleerd
Verwarming Cv ketel, vloerverwarming geheel
Warm water Cv ketel
   
Buitenruimte
Ligging Aan water, in centrum, vrij uitzicht
Balkon/dakterras Balkon

Locatie

Wilt u meer weten, of een afspraak maken?

We gebruiken uw gegevens alleen om contact met u op te kunnen nemen. Zie ook onze privacyverklaring.