Middenweg 34 H

1097 BP AMSTERDAM

Omschrijving

Te huur: Winkelruimte van c.a. 154m² VVO gelegen aan de levendige Middenweg!

Aan de Middenweg 34 bevindt zich deze goed zichtbare en toegankelijke winkelruimte van c.a. 154 m² VVO, met een aantrekkelijke etalage van maar liefst c.a. 4.5 meter. De winkel is voorzien van een eenvoudige entree en een praktische kelder voor opslag. De Middenweg is een levendige winkelstraat met een sterke mix van winkels en dagelijkse voorzieningen, wat zorgt voor een constante aanloop van een breed publiek uit Oost en de Watergraafsmeer. Dankzij de uitstekende bereikbaarheid per tram, bus en fiets, gecombineerd met goede parkeermogelijkheden in de omgeving, is dit een zeer aantrekkelijke locatie voor retailers. De winkelruimte is beschikbaar in overleg.

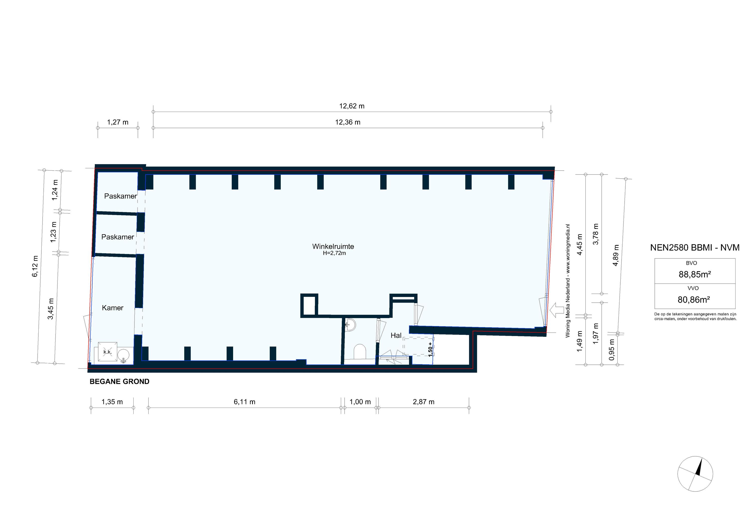
VERHUURBAAR VLOEROPPERVLAK
Totaal circa 154m², verdeeld over twee ruimtes:
- Begane grond: c.a. 81m² VVO;
- Kelder: ca. 73m² VVO.

OPLEVERING
In overleg.

OPLEVERSTAAT
In overleg, diverse opties.

HUURPRIJS
€2.750,00 per maand, excl. BTW.

SERVICEKOSTEN
Niet van toepassing, de ruimte beschikt over eigen meters.
Huurder dient zelf contracten te sluiten met de aanleverende nutsbedrijven.

ENERGIELABEL
A

BESTEMMING
Detailhandel.

HUURBETALING
Betaling per maand vooruit.

HUURTERMIJN
In overleg, doch uitgangspunt is 5 jaar met aansluitende periode van 5 jaar.

ZEKERHEIDSTELLING
Bankgarantie of waarborgsom ter grootte van 3 maanden huur vermeerderd met BTW.

HUURPRIJSAANPASSING
Jaarlijks, op basis van de wijziging van het maandprijsindexcijfer volgens de consumentenprijsindex (CPI) reeks alle huishoudens (2006=100), gepubliceerd door het Centraal Bureau voor de Statistiek (CBS).

OVERIGE CONDITIES
Huurovereenkomst op basis van het standaardmodel van de Raad voor Onroerende Zaken (ROZ), zoals gehanteerd door de Nederlandse Vereniging van Makelaars in onroerend goed (NVM).

Kenmerken

Oppervlakte 154 m2
Functies Winkelruimte
Beschikbaar In overleg
Toon alle kenmerken

Kenmerken

Overdracht
Vraagprijs € 2.750,- per maand
Status Beschikbaar
Aanvaarding In overleg
   
Bouw
Hoofdfunctie Winkelruimte
Mogelijke functies Winkelruimte
Soort bouw Bestaande bouw
   
Oppervlakten
Oppervlakte 154 m2
   
Energie
Energielabel A
   
Omgeving
Ligging Wijkwinkelcentrum
Bereikbaarheid Bushalte: op 500 m tot 1000 m
Tramhalte: op minder dan 500 m
Metrohalte: op 1000 m tot 1500 m
Treinstation: op 500 m tot 1000 m
Snelwegafrit: op 1000 m tot 1500 m

Locatie

Wilt u meer weten, of een afspraak maken?

We gebruiken uw gegevens alleen om contact met u op te kunnen nemen. Zie ook onze privacyverklaring.