Beulingstraat 4 T

1017 BA AMSTERDAM

Omschrijving

Karakteristiek en licht 2-kamerappartement (50 m²) in een Rijksmonumentaal pand in een rustige, autoluwe straat in hartje Amsterdam!

Het appartement is gelegen op de bovenste verdieping van statig historisch pand tussen de Herengracht en het Singel. De openslaande deuren naar het zonnig frans balkon bieden een fraai uitzicht over de omliggende panden en grachten: ultiem Amsterdams geluk! De ligging op eigen grond en sfeervolle open-nok en balkconstructie maken dit af.

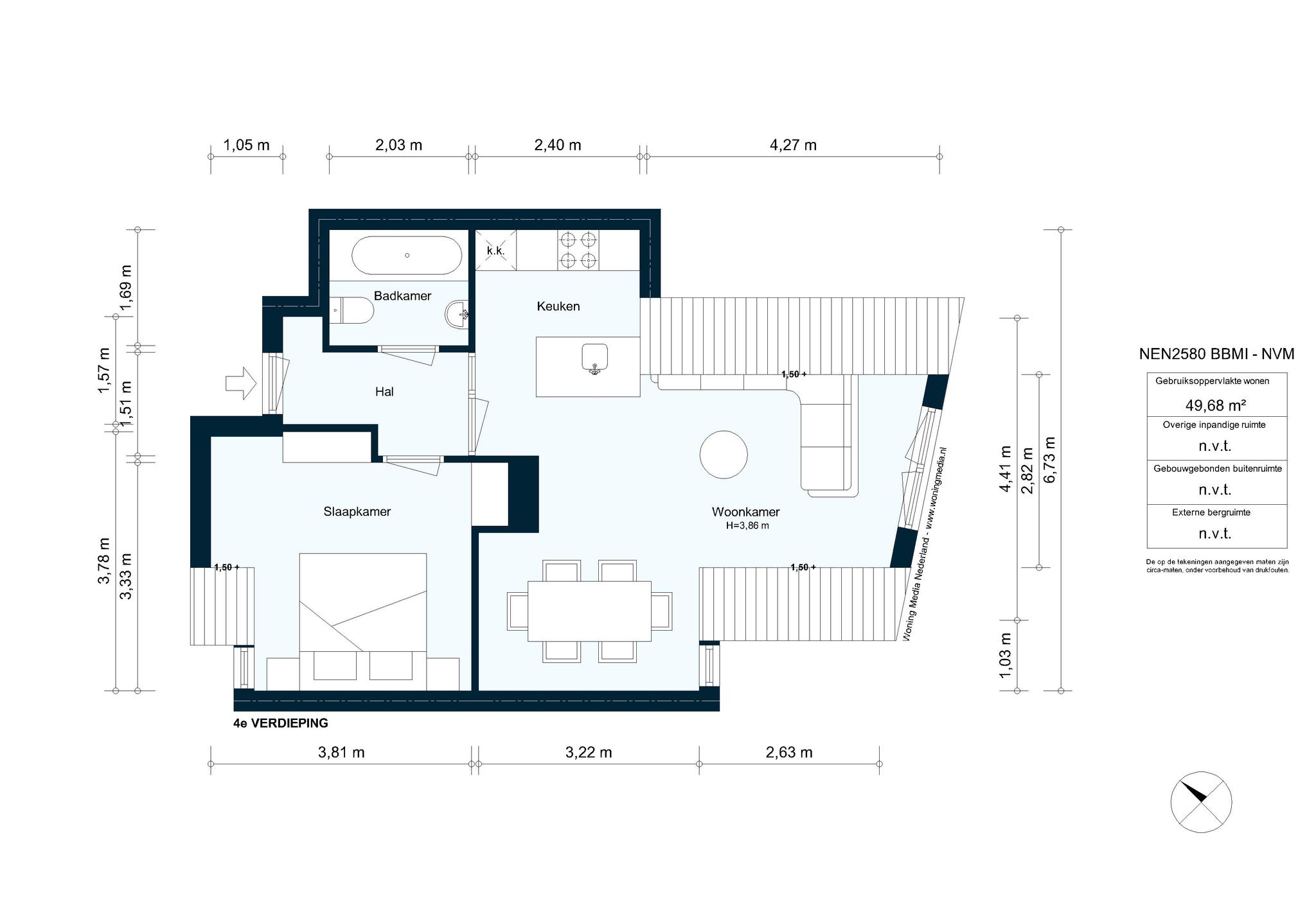
INDELING
Gemeenschappelijke entree op straatniveau. Via de trap is er toegang tot het appartement op de derde verdieping.
Bij binnenkomst is er een hal met toegang tot alle ruimte. Aan de voorzijde bevindt zich de lichte en sfeervolle woonkamer met open keuken. Dankzij de hoge nok en de karakteristieke, zichtbare balken voelt de ruimte extra ruimtelijk aan. Vanuit de zithoek zijn er openslaande deuren naar het frans balkon met een charmant uitzicht over de omliggende historische panden. Daarnaast biedt de woonkamer genoeg ruimte voor een gezellige eethoek. Van de ochtend tot in de middag schijnt de zon naar binnen. In de middag vallen de zonnestralen op de keuken.
De openkeuken is een echte blikvanger, afgewerkt in een vrolijke groene kleur. De keuken beschikt over een spoeleiland, ijskast met vriesvak, oven, 5-pitsgasfronuis, afzuigkap en wasmachine aansluiting.
Daarnaast beschikt de woonkamer over een entresol, ideaal als logeerplek of extra opbergruimte.
Aan de rustige achterzijde van het appartement ligt de slaapkamer, met genoeg ruimte voor een tweepersoonsbed en een kledingkast.
Centraal in het appartement vindt u de moderne badkamer, uitgerust met een ligbad-douchecombinatie, een wastafel met meubel en een wc.

Het gehele appartement is voorzien van een mooie eikenhouten lamelparketvloer.

Tot slot is er een separate berging (ca. 5 m²) in onderbouw.

GROND SITUATIE
- Eigen grond, GEEN erfpacht.

VERENIGING VAN EIGENAREN
- In eigen beheer, 19 leden;
- Reservefonds aanwezig;
- Maandelijkse bijdrage € 193,55.

BIJZONDERHEDEN
- Rijksmonument (bouwjaar circa 1700);
- Derde verdieping (geen bovenburen);
- Woonoppervlakte van circa 50 m² (NEN2580 rapport aanwezig);
- Speelse open nok met entresol en zichtbare balkconstructie;
- Openslaande deuren naar frans balkon op het zonnige zuid/zuidoosten;
- Eikenhouten lamelparketvloer door het gehele appartement;
- 1 slaapkamer;
- Open keuken met gezellig bargedeelte;
- Berging op de begane grond (ca. 5m²);
- Eigen grond, GEEN erfpacht;
- Niet-zelfbewoningsclausule
- Ouderdomsclausule
- Oplevering in overleg.

LOCATIE
Verscholen tussen de Herengracht en het Singel ligt de Beulingstraat: een charmante, autoluwe straat midden in het bruisende centrum van Amsterdam. Hier woont u rustig, maar met alle stadse gemakken binnen handbereik.
Winkels, restaurants, theaters, musea en gezellige cafés – alles ligt op loopafstand. De populaire 9 Straatjes bereikt u in enkele minuten, net als het levendige Spui, het Koningsplein, het Leidseplein en het Muntplein. Centraler wonen kan bijna niet.
Voor de dagelijkse boodschappen is er een Albert Heijn om de hoek. Ook de bekende winkelstraten, zoals de Leidsestraat en Kalverstraat, bevinden zich in de directe omgeving.
Liefhebbers van een mooie stadswandeling hoeven slechts de straat uit te lopen om te genieten van de historische grachtengordel. En wie wat meer groen zoekt, staat binnen enkele minuten in het Vondelpark.
De bereikbaarheid is uitstekend: vanaf het Koningsplein vertrekken diverse tramverbindingen en met de fiets bent u binnen vijf minuten op Amsterdam Centraal of op andere plekken in de stad.

Kortom: een unieke combinatie van rust, karakter en stedelijke dynamiek.

Deze informatie is door ons met de nodige zorgvuldigheid samengesteld. Onzerzijds wordt echter geen enkele aansprakelijkheid aanvaard voor enige onvolledigheid, onjuistheid of anderszins, dan wel de gevolgen daarvan. Alle opgegeven maten en oppervlakten zijn indicatief. Van toepassing zijn de NVM voorwaarden.

Kenmerken

Oppervlakte 50 m2
Aantal kamers 2
Aantal slaapkamers 1
Beschikbaar In overleg
Toon alle kenmerken

Kenmerken

Overdracht
Vraagprijs € 485.000,- K.K.
Status Verkocht
Aanvaarding In overleg
   
Bouw
Soort appartement Bovenwoning (appartement)
Soort bouw Bestaande bouw
Bouwjaar 1700
   
Oppervlakten en inhoud
Wonen 50 m2
Inhoud 239 m3
   
Indeling
Aantal kamers 2 (1 slaapkamers)
Aantal badkamers 1
Aantal woonlagen 2
Voorzieningen Frans balkon
   
Energie
Isolatie Grotendeels dubbelglas
Verwarming Cv ketel
Warm water Cv ketel
   
Buitenruimte
Ligging Aan rustige weg, in centrum

Locatie

Wilt u meer weten, of een afspraak maken?

We gebruiken uw gegevens alleen om contact met u op te kunnen nemen. Zie ook onze privacyverklaring.