Nassaukade 146 4

1052 EH AMSTERDAM

Description

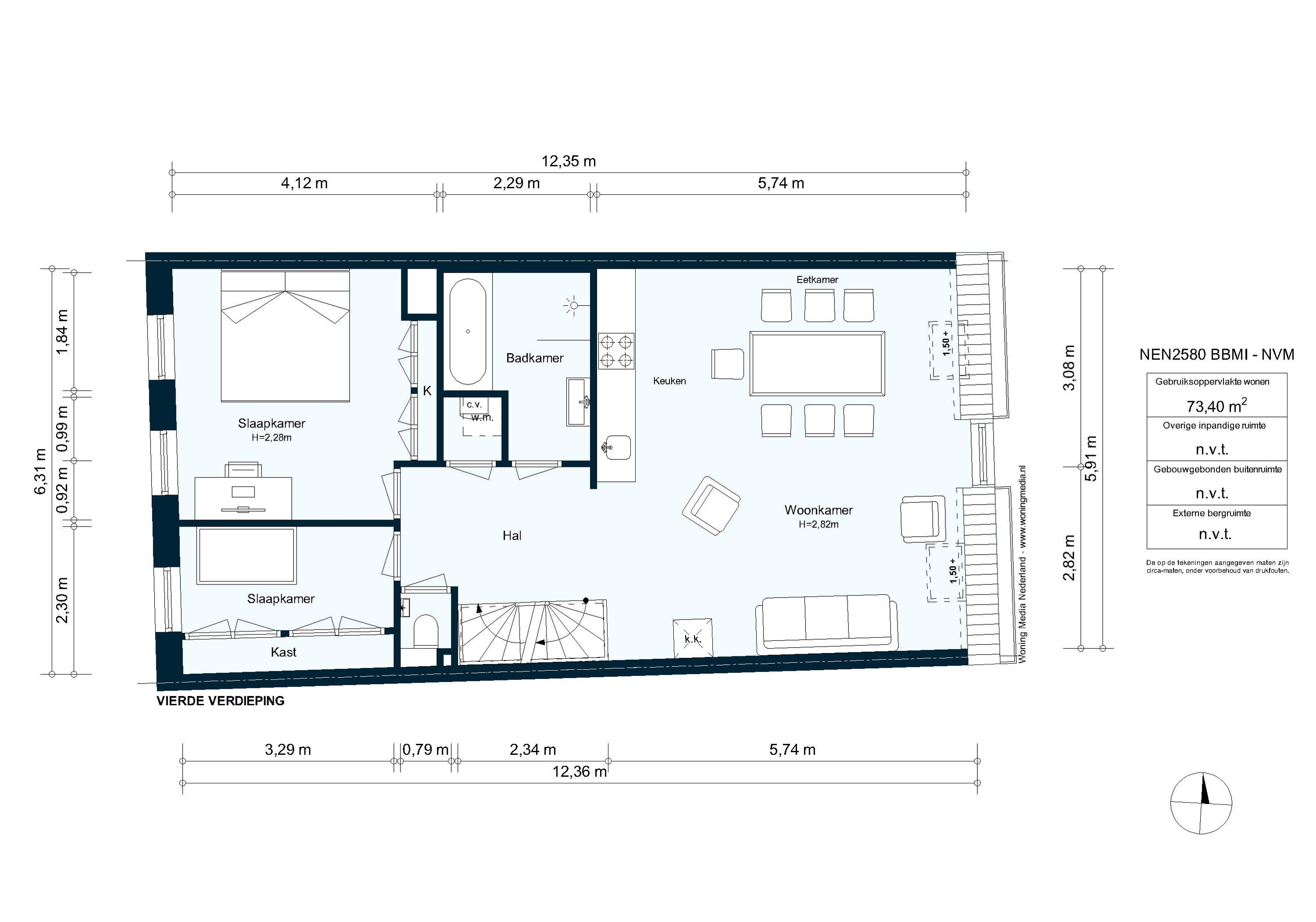
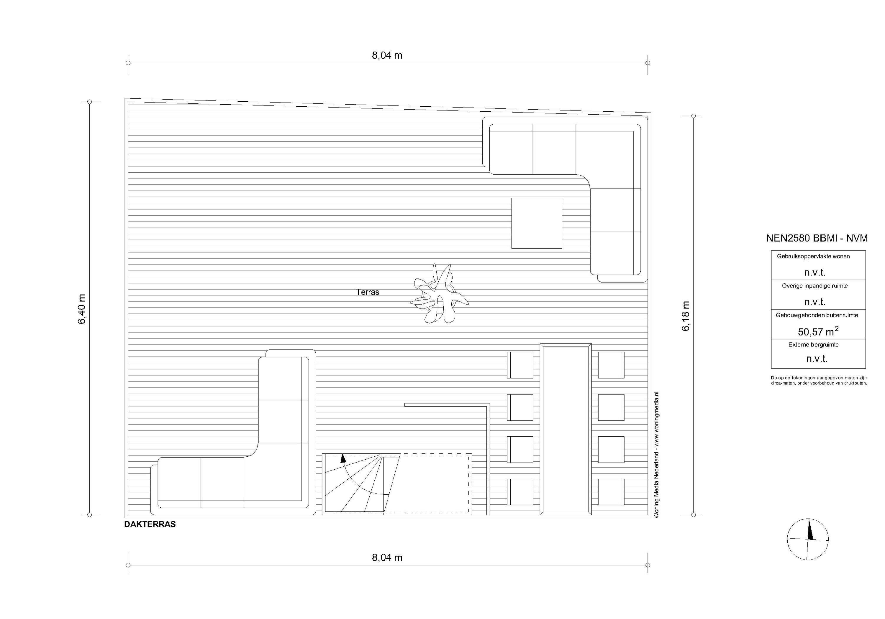
In the sought-after Oud-West neighborhood, overlooking the Singelgracht canal and the Jordaan district, we are offering this wonderfully light and attractive three-room apartment. Located on the fourth and top floor of a characteristic Amsterdam building, this property offers a living area of 76 m², two good-sized bedrooms, and a spacious roof terrace of over 50 m² with phenomenal views over the city. The building was renovated in 2011, including a new foundation, combining modern comfort with authentic Amsterdam charm.

In short, a delightful upper floor apartment with lots of light and a spacious outdoor area in a prime location on Nassaukade!

LAYOUT
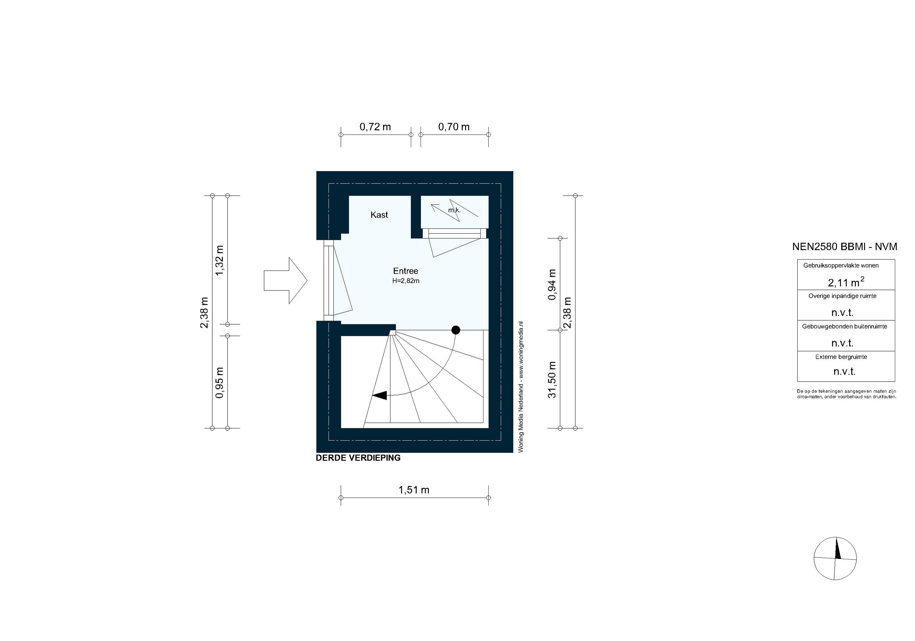
The neat staircase leads to the entrance of the apartment on the fourth floor. The hall provides access to all rooms. At the front is the bright living room with beautiful views over the Singelgracht. The modern open kitchen connects seamlessly to the living room and is equipped with various built-in appliances, including a 6-burner gas stove, oven, extractor hood, boiling water tap, and dishwasher. There is enough space here for a large dining table that seats 10 people. At the quiet rear of the house are two good-sized bedrooms. The master bedroom offers enough space for a double bed and a large closet, while the second room is ideal as a guest room, children's room, or study.

The bathroom is centrally located, stylishly designed, and equipped with a walk-in shower, bathtub, sink, and towel radiator. There is also a separate toilet with a washbasin. The washing machine connection and central heating system are located in a separate closet. An absolute highlight is the spacious roof terrace of approx. 51 m², where you can enjoy the sun and the view over the city in peace and quiet. A wonderful place for long summer evenings with friends.

SPECIAL FEATURES
- Spacious roof terrace
- Located on the top floor
- Beautiful view of the city
- Building with new foundation
- Double glazing at both the front and rear
- Oak parquet flooring throughout the apartment
- Delivery in consultation

METRAGES
- Usable living area: 75.51 m²
- Gross floor area of the apartment: 86.03 m²
- Gross volume of the apartment: 268.41 m³
- Roof terrace: 50.57 m²

HOMEOWNERS' ASSOCIATION
- The homeowners' association consists of six members and is professionally managed
- There is a long-term maintenance plan (MJOP) in place
- The monthly contribution is €121OWNERSHIP SITUATION
- The property is located on municipal leasehold land.
- Annual ground rent: €2,022 (tax deductible)
- General provisions 2016 apply

OWNERSHIP SITUATION
- The property is located on municipal leasehold land.
- Annual ground rent: €2,022 (tax deductible)
- General provisions 2016 apply

LOCATION AND ACCESSIBILITY
The property is located on Nassaukade, on the edge of the Jordaan, in the popular Oud-West district. A vibrant neighborhood with countless cafés, restaurants, and specialty shops. The Nine Streets, the Noordermarkt, and Hugo de Grootplein are within walking distance, as are supermarkets and local shops. Accessibility is excellent: various tram and bus lines stop around the corner, and the A10 ring road is just a few minutes away by car. Parking is available through the municipal permit system.

'‘This information has been compiled by us with the necessary care. However, we accept no liability for any incompleteness, inaccuracy, or otherwise, or the consequences thereof. All specified sizes and surfaces are indicative. The NVM conditions apply.’'

Features

Surface 76 m2
Rooms 3
Bedrooms 2
Exterior space Zonneterras
Availability Available in consultation
All Features

Features

Transfer of ownership
Asking price € 675.000,- K.K.
Status Available
Acceptance Available in consultation
   
Construction
Kind of house Upstairs apartment (apartment)
Building type Resale property
   
Surface areas and volume
Living area 76 m2
Volume in cubic meters 268 m3
   
Layout
Number of rooms 3 (2 bedrooms)
Number of bath rooms 1
Number of stories 1
Facilities Mechanical ventilation
   
Energy
Energy label E
Insulation Floor insulation, double glazing
Heating CH boiler
Hot water CH boiler
   
Exterior space
Location Alongside water, in center, in residential district, unobstructed surrounding view, on navigable waterway
Balkon/dakterras Zonneterras

Location

Do you want to know more or make an appointment?

We only use your data to be able to contact you. See also our privacy statement.