Lomanstraat 58 H

1075 RD AMSTERDAM

Description

Located on Lomanstraat in Amsterdam-Zuid is this high-quality, exceptionally well-designed ground-floor apartment of approximately 135 m², spanning the ground floor and first floor, with a basement and a beautifully landscaped garden.

The home stands out for its combination of space, proportions, and finishes. A spacious living area, four bedrooms, and direct access to the garden create a comfortable and well-balanced family home in one of the most sought-after locations in Oud-Zuid.

LAYOUT

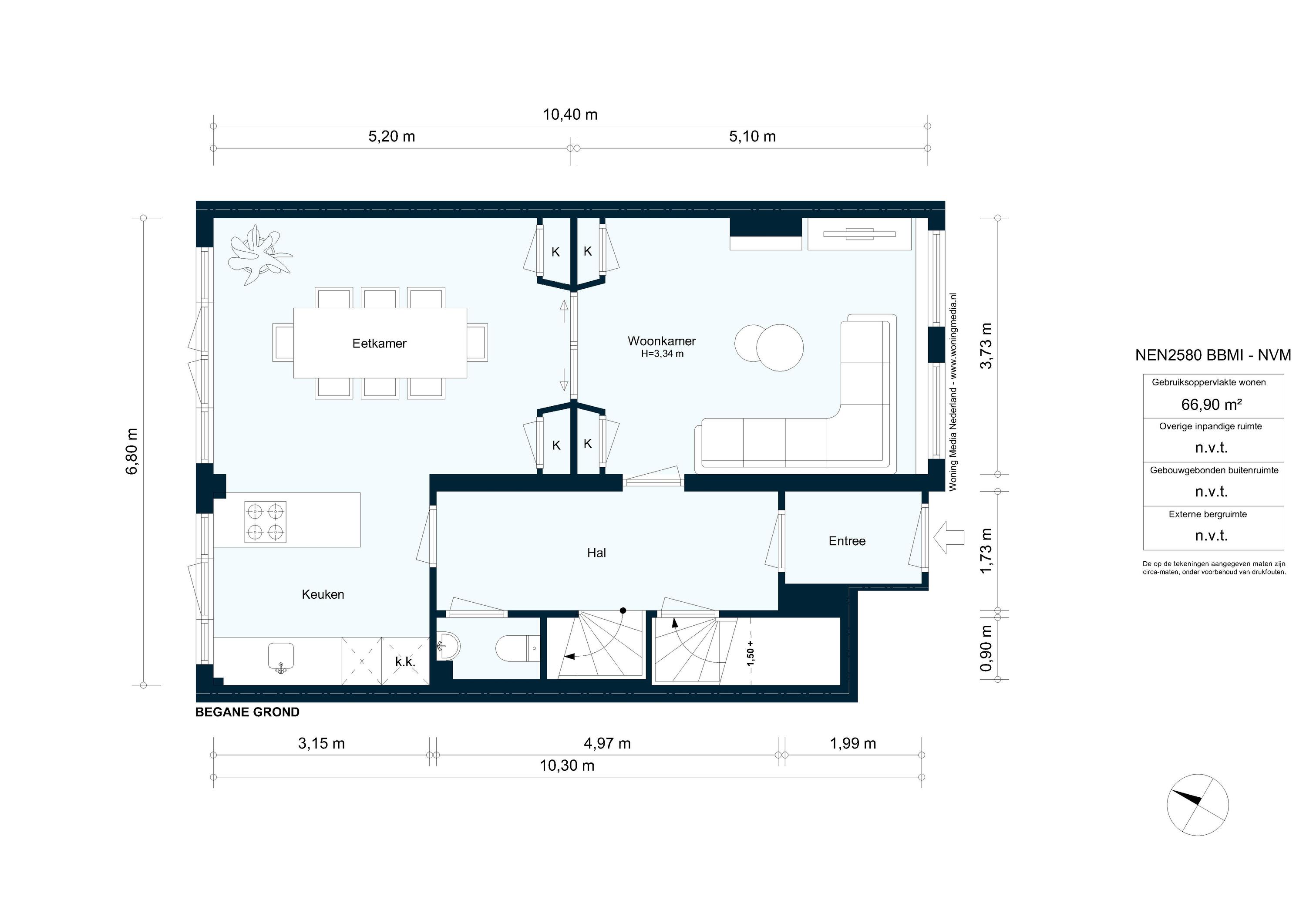
Ground Floor
The ground floor is accessed via a private entrance. The spacious entryway, featuring marble flooring and walls in the vestibule, immediately sets the tone. The generous dimensions and high ceilings give this space a grand and airy character.
The living room is located at the front. This space stands out for its width, the high ornate ceilings, and the large windows that provide pleasant natural light and a view of the green street scene. The open-plan layout with built-in cabinets creates a natural separation between the sitting and dining areas without losing the open character. The gas fireplace serves as a central element in the sitting area and contributes to the atmosphere and functionality of the space.
At the rear is the dining room, which flows seamlessly into the kitchen and clearly functions as a fully-fledged living space. The dimensions allow for a large dining table here, suitable for dinners with family and friends. The kitchen features a sleek, white Bulthaup layout and is situated directly on the garden side, creating a logical and pleasant connection between cooking, dining, and the outdoors.
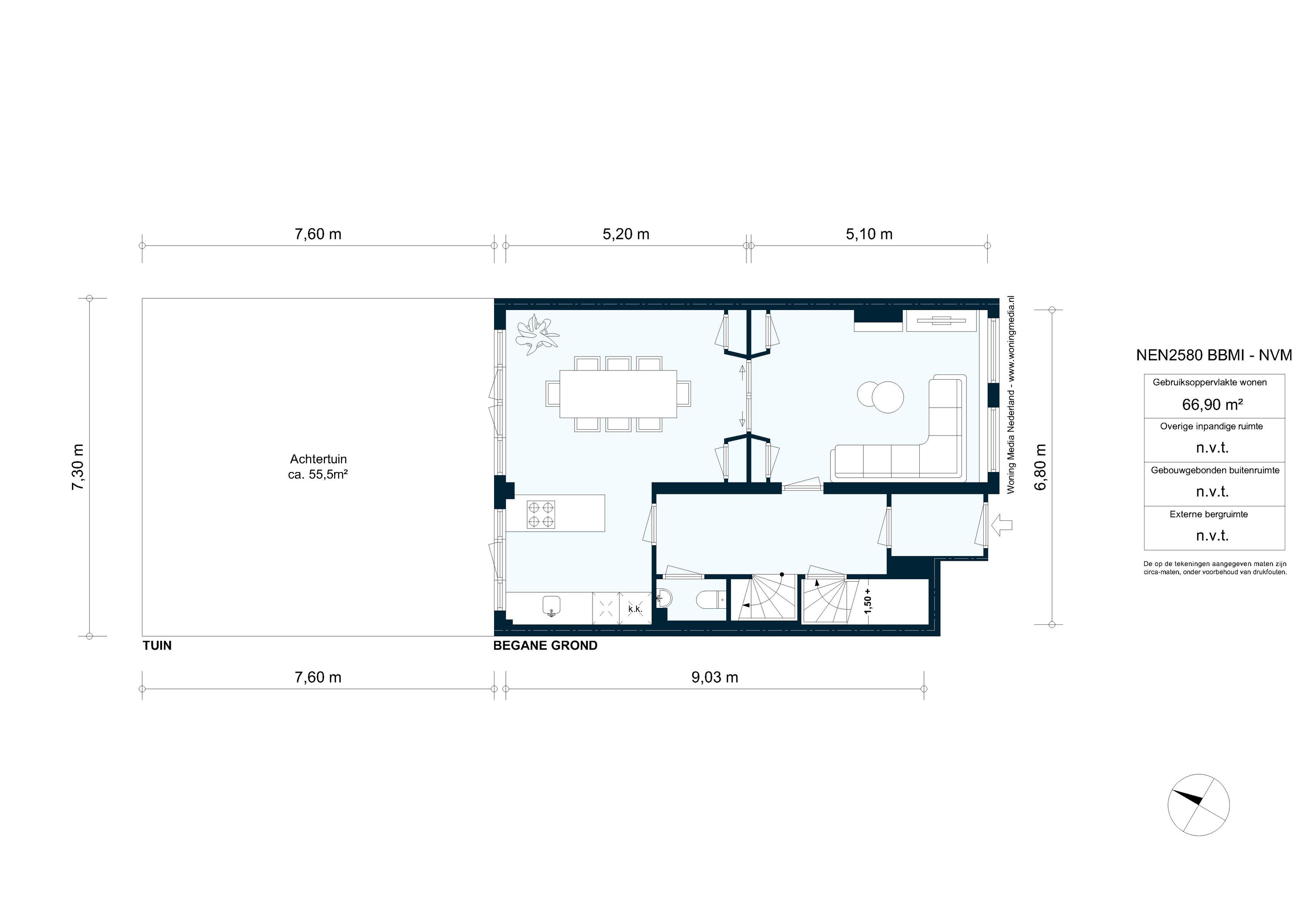
The backyard is accessible through French doors and serves as a natural extension of the living area. With an area of approximately 55 m², the garden offers space for multiple seating areas and greenery, making it suitable for both relaxation and family use. This floor also features a separate restroom and the staircase leading to the first floor and the basement.

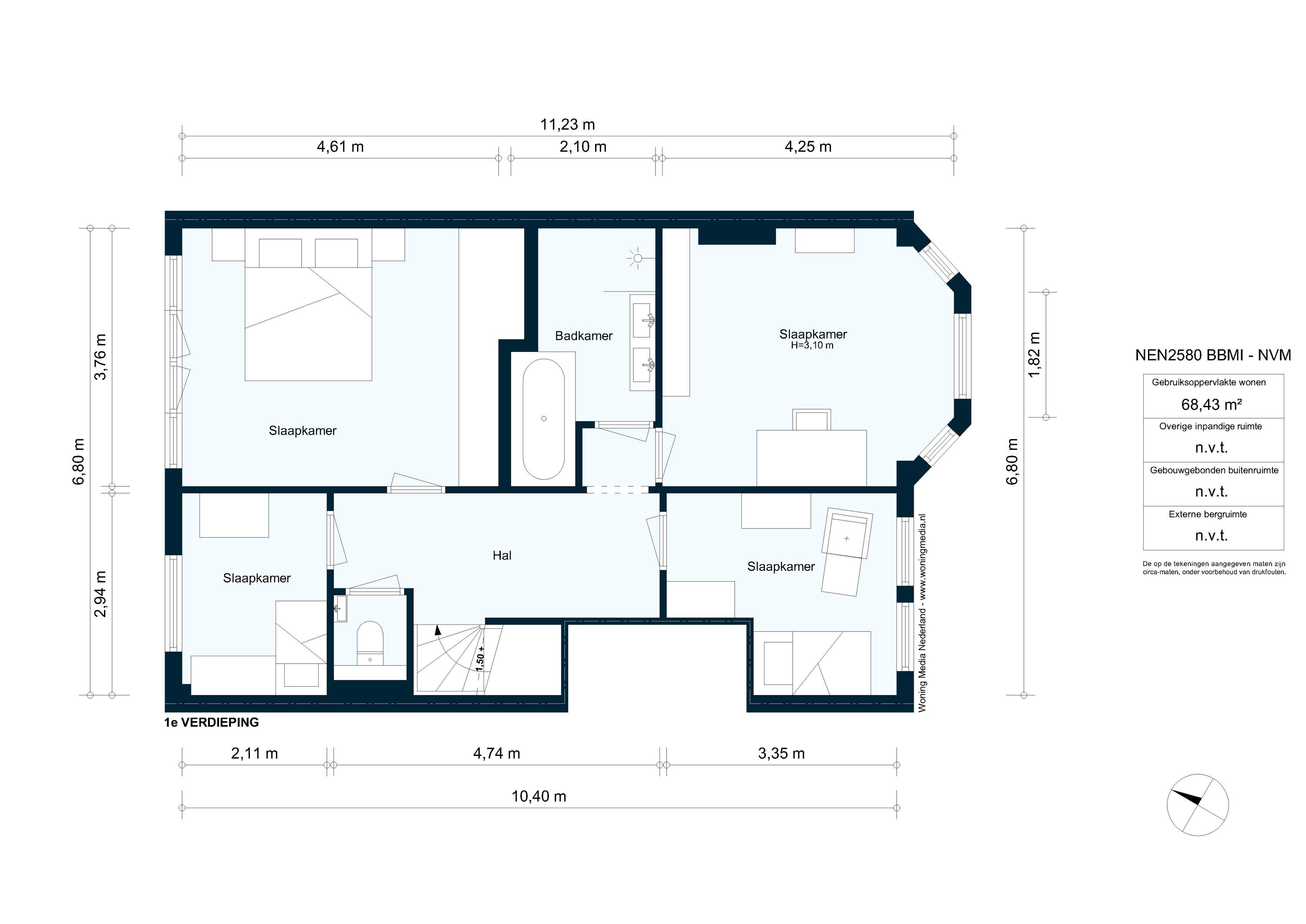
First Floor
The first floor is accessed via the internal staircase. Here, too, the ceiling height and layout create a spacious and comfortable environment.
The master bedroom is located at the rear of the home, offering a quiet setting and generous dimensions. The room features a custom-built wall of cabinets, providing efficient and aesthetically pleasing storage.
At the front is a second spacious bedroom, furnished with a fold-down bed, allowing the space to be used flexibly as a bedroom, home office, or study. The bay-window-style facade provides extra light and character here.
In addition, there are two more bedrooms, which are well-suited as children’s rooms, home offices, or guest rooms, making the home ideal for a family.
The bathroom is centrally located on the floor; it was renovated in 2025 and features a bathtub, walk-in shower, and a double vanity. The separate toilet was also renovated in the same year, contributing to the well-maintained and modern finish of this floor.

Basement
The basement is accessible from the entryway on the ground floor. This space is designated as other indoor space and, with approximately 25 m², offers a practical addition to the living area. The space is ideal for use as a storage room, pantry, and/or laundry room.

HOUSING ASSOCIATION
- Housing association in place
- Self-managed
- Consisting of 3 members
- Service fees amount to €120 per month

OWNERSHIP STATUS
Located on freehold land.

SPECIAL FEATURES
- Ground-floor apartment of approximately 135 m²
- Spread over two full floors (above ground)
- Basement (classified as other indoor space) of approximately 25 m²
- Backyard of approximately 55 m² facing northwest
- Bathroom renovated in 2025
- Bulthaup kitchen
- Authentic details, such as an en suite bathroom and ornate ceiling
- Wide entryway clad in marble
- Fully equipped with double-glazed windows
- Energy label C, valid through 05/02/2033
- Delivery scheduled for October 2026

SQUARE FOOTAGE
- NEN-2580 report available
- Usable living area 135.33 m²
- Other indoor space 25.22 m²
- Gross floor area 182.30 m²
- Gross volume of the home 602.45 m³
- Garden area 55.5 m²

PARKING
Parking on public streets is available through a permit system (the permit zone is Zuid 8.1.). With a parking permit for Zuid 8.1., you may park in Zuid 1, Zuid 2, and Zuid 8. A resident parking permit costs €199.93 per 6 months. Currently, there is a 6-month waiting period for this permit zone. A second parking permit is not available in this area. (Source: City of Amsterdam, March 2026).

SURROUNDINGS
The home is located on Lomanstraat in Amsterdam-Zuid, a beloved and charming residential neighborhood with a quiet street scene and a central location. This neighborhood is known for its stately architecture, wide streets, and pleasant combination of residential living, amenities, and accessibility.
In the immediate vicinity, there are various shops for daily groceries, specialty stores, restaurants and cafes, and good schools. Vondelpark, Cornelis Schuytstraat, and various sports and recreational facilities are also a short distance away.
Accessibility is excellent. The home is easily accessible by bike, car, and public transportation. Amsterdam Zuid Station, Lelylaan Station, and various tram and bus connections are all within easy reach. Major roads leading to the A10 Ring Road are also just a short drive away.
The combination of space, character, family-friendly functionality, and location makes this a particularly attractive place to live in Amsterdam-Zuid.

“This information has been compiled by us with due care. However, we accept no liability whatsoever for any incompleteness, inaccuracy, or other errors, or for the consequences thereof. All dimensions and square footage provided are approximate. The NVM terms and conditions apply.”

Features

Surface 135 m2
Rooms 6
Bedrooms 4
Exterior space Back garden
Availability Available in consultation
All Features

Features

Transfer of ownership
Asking price € 1.680.000,- K.K.
Status Sold under reservation
Acceptance Available in consultation
   
Construction
Kind of house Downstairs apartment (apartment)
Building type Resale property
Year of construction 1913
   
Surface areas and volume
Living area 135 m2
Volume in cubic meters 615 m3
   
Layout
Number of rooms 6 (4 bedrooms)
Number of bath rooms 1
Number of stories 3
Facilities Mechanical ventilation, tv via cable
   
Energy
Energy label C
Insulation Double glazing
Heating CH boiler
Hot water CH boiler
   
Exterior space
Location Alongside a quiet road, in center, in residential district
Balkon/dakterras Back garden

Location

Do you want to know more or make an appointment?

We only use your data to be able to contact you. See also our privacy statement.