Haarlemmerweg 155 H

1051 KZ AMSTERDAM

Description

Charming Ground-Floor Apartment with Sunny Garden near Westerpark

Situated on Haarlemmerweg, in the highly sought-after Staatsliedenbuurt, this well-designed ground-floor apartment of approximately 66 m² offers a peaceful and green south-facing garden. From the front, the property enjoys open views towards the Westergasfabriek, while the rear provides a quiet and private outdoor retreat. The apartment features two bedrooms and a bright living area with an open-plan kitchen. Large windows and a skylight allow for an abundance of natural light, creating a spacious and inviting atmosphere throughout the home.

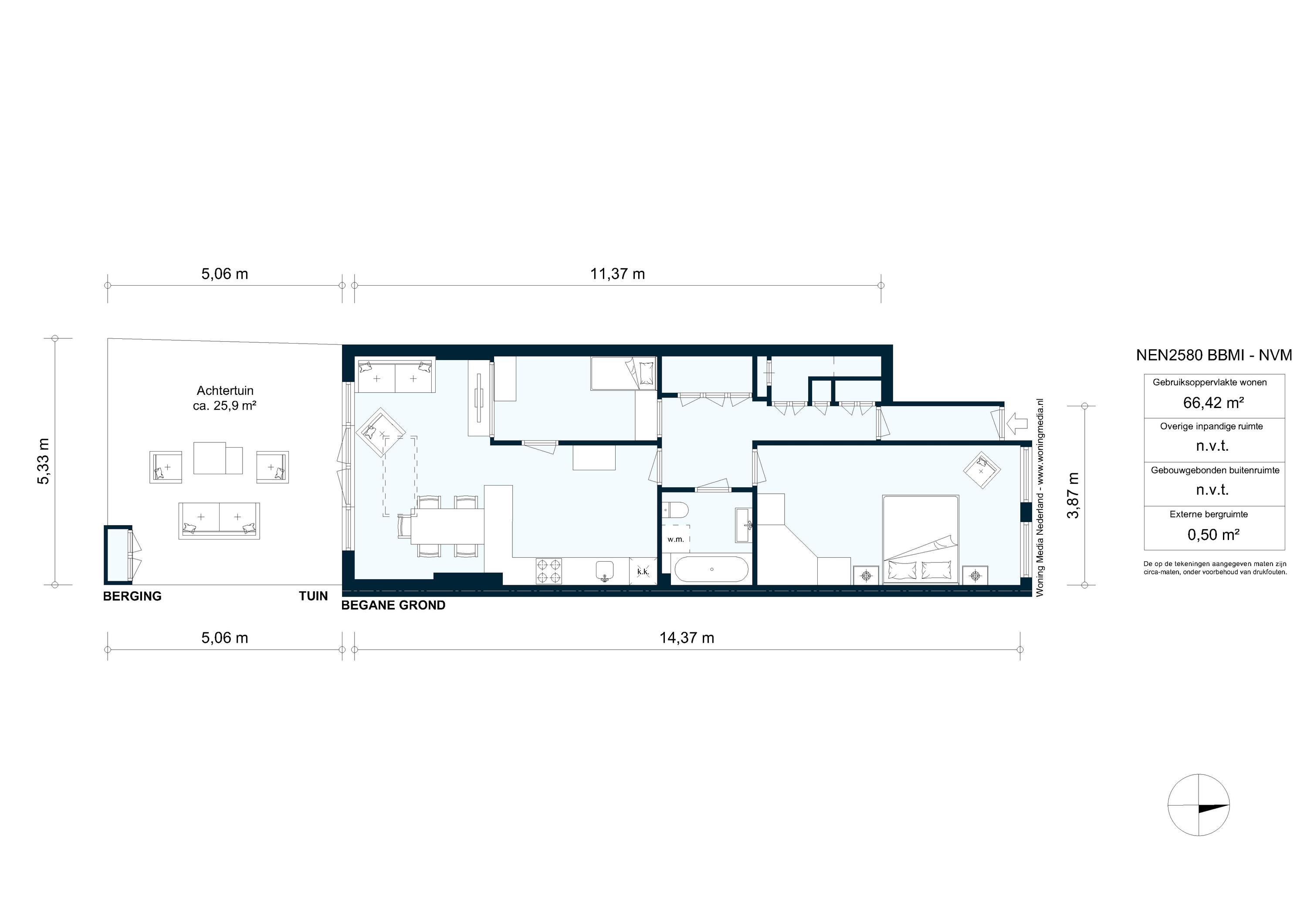
A key highlight is the seamless connection between the living room and the garden, offering a natural extension of the indoor living space—perfect for enjoying outdoor living for much of the year.

LAYOUT
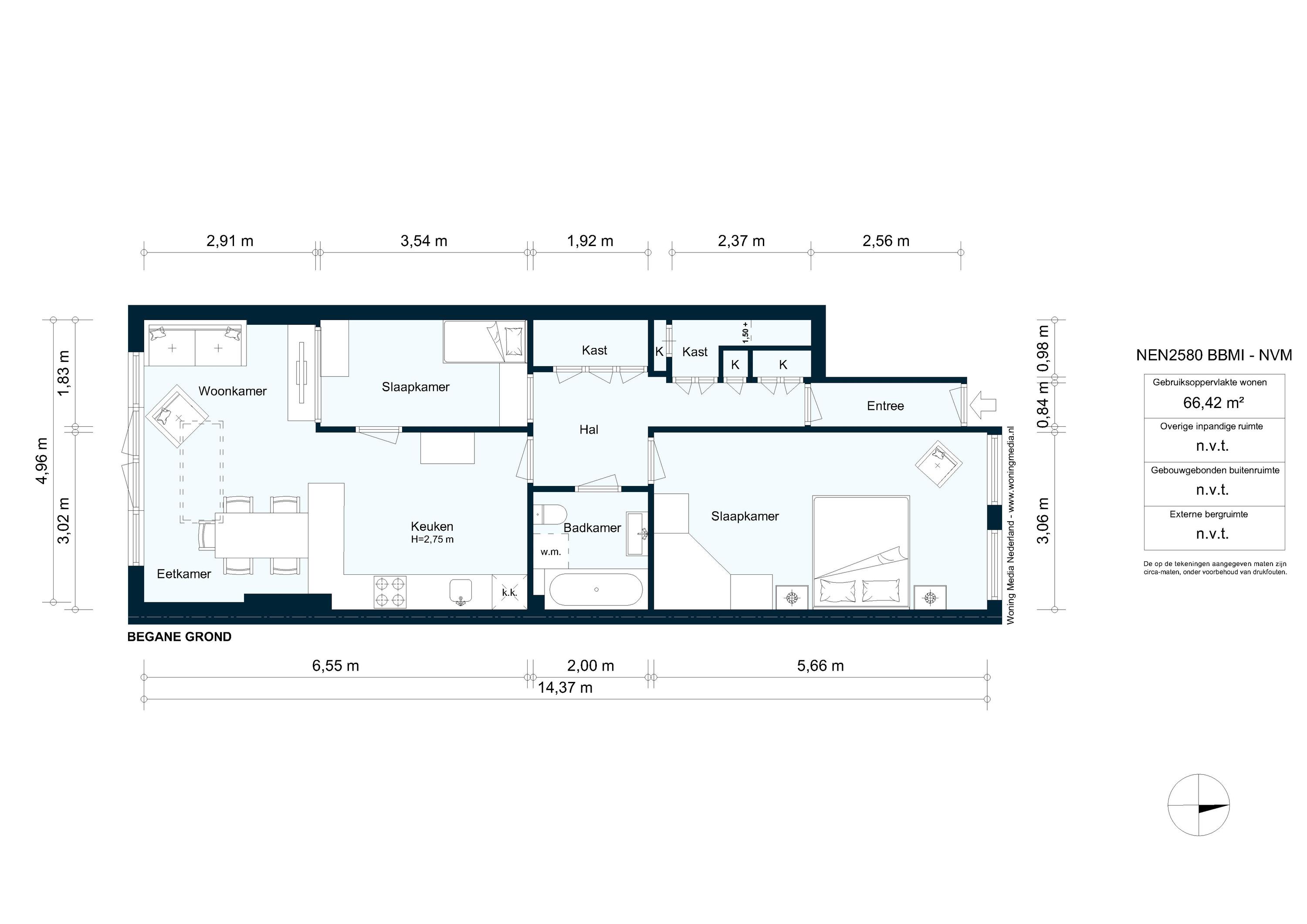
Ground floor
Private entrance at the front leads into the central hallway, which provides access to all rooms.
The living area is located at the rear of the property and is characterized by its open layout, large windows, and direct access to the garden through wide glass doors. The addition of a skylight enhances the sense of light and space.
The open-plan kitchen is arranged in a practical corner layout with a bar and is equipped with built-in appliances, offering ample workspace and storage. Its open design creates a pleasant connection between cooking, dining, and relaxing.
The south-facing garden is a true asset—quietly positioned and surrounded by greenery, it offers plenty of space for outdoor seating and planting, forming a tranquil escape in the heart of the city.
The main bedroom is located at the front and offers sufficient space for a double bed and wardrobe. The second bedroom is positioned at the rear and is ideal as a home office, guest room, or nursery.
The centrally located bathroom is fitted with a bathtub and shower combination, washbasin, and connections for a washing machine. The toilet is also situated within the bathroom.

HOMEOWNERS ASSOCIATION (VvE)
- Monthly contribution: €113.42;
- Small-scale association (4 members);
- Self-managed;
- Long-term maintenance plan in place.

PROPERTY DETAILS
- Located on municipal leasehold land;
- General provisions 2000 apply;
- Current lease period runs until 31-08-2055;
- Ground rent has been prepaid until the end of the term.

KEY FEATURES
- Ground-floor apartment of approx. 66 m²;
- South-facing garden of approx. 26 m²;
- Bright living space with large windows and skylight;
- Open-plan kitchen with bar;
- Two bedrooms (one internal);
- Energy label D (valid until 22-11-2030);
- Transfer possible from mid-May 2026.

LOCATION
The property is situated on Haarlemmerweg in Amsterdam-West, a location where vibrant city life and green surroundings come together effortlessly. Just moments away lies the popular Westerpark, widely regarded as one of the city’s most beloved parks. This expansive green space offers the perfect setting for walking, sports, or simply unwinding in a peaceful environment.
At the heart of the park you will find the Westergasfabriek, set within beautifully restored industrial heritage buildings. This area has evolved into a lively cultural hotspot, home to a variety of restaurants, cafés, galleries, a cinema, and a wide range of recurring events and festivals throughout the year.
The immediate surroundings offer an attractive mix of residential charm, local amenities, and vibrant hospitality. In the area around the park, as well as along the Spaarndammerstraat and Van Limburg Stirumstraat, you will find a diverse selection of cafés, restaurants, and coffee bars popular with locals—ideal for everything from a morning coffee to an evening dinner or drinks.
For daily shopping, several supermarkets and specialty stores are conveniently located nearby. The Haarlemmerplein is also within easy reach, offering a varied selection of shops and dining options. The Jordaan and the charming Haarlemmerdijk, known for their unique boutiques and lively atmosphere, can be reached within minutes by bike.
Accessibility is excellent. The city centre is approximately a 10-minute bike ride away, while nearby Amsterdam Sloterdijk Station provides fast train, metro, and bus connections to destinations including Amsterdam Central Station and Schiphol Airport. By car, the A10 ring road is just a few minutes away.
The combination of a prime location near Westerpark, a lively urban setting, and excellent connectivity makes this a highly desirable place to live in Amsterdam-West.

Disclaimer
This information has been compiled with due care. However, we accept no liability for any inaccuracies, omissions, or consequences thereof. All stated measurements and surface areas are indicative. The terms and conditions of the NVM apply.

Features

Surface 66 m2
Rooms 3
Bedrooms 2
Exterior space Back garden
Availability Available in consultation
All Features

Features

Transfer of ownership
Asking price € 575.000,- K.K.
Status Available
Acceptance Available in consultation
   
Construction
Kind of house Downstairs apartment (apartment)
Building type Resale property
Year of construction 1904
   
Surface areas and volume
Living area 66 m2
Volume in cubic meters 253 m3
   
Layout
Number of rooms 3 (2 bedrooms)
Number of bath rooms 1
Number of stories 1
Facilities Mechanical ventilation, tv via cable, natural ventilation
   
Energy
Energy label D
Insulation Floor insulation, double glazing, hr_glas
Heating CH boiler
Hot water CH boiler
   
Exterior space
Location Alongside busy road, in center, in residential district, unobstructed surrounding view
Balkon/dakterras Back garden

Location

Do you want to know more or make an appointment?

We only use your data to be able to contact you. See also our privacy statement.