Frans van Mierisstraat 56 H

1071 RW AMSTERDAM

Description

In a beautiful location in Amsterdam-Zuid, in the heart of the sought-after Museum Quarter, this stylish and spacious double ground floor apartment of approximately 144 m² is located on Frans van Mierisstraat. The property is spread over the ground floor and basement and features a bright living room, three bedrooms, and a lovely sunny garden.

An ideal family home, situated in a prime location between the Vondelpark and Beethovenstraat!

LAYOUT
Ground floor
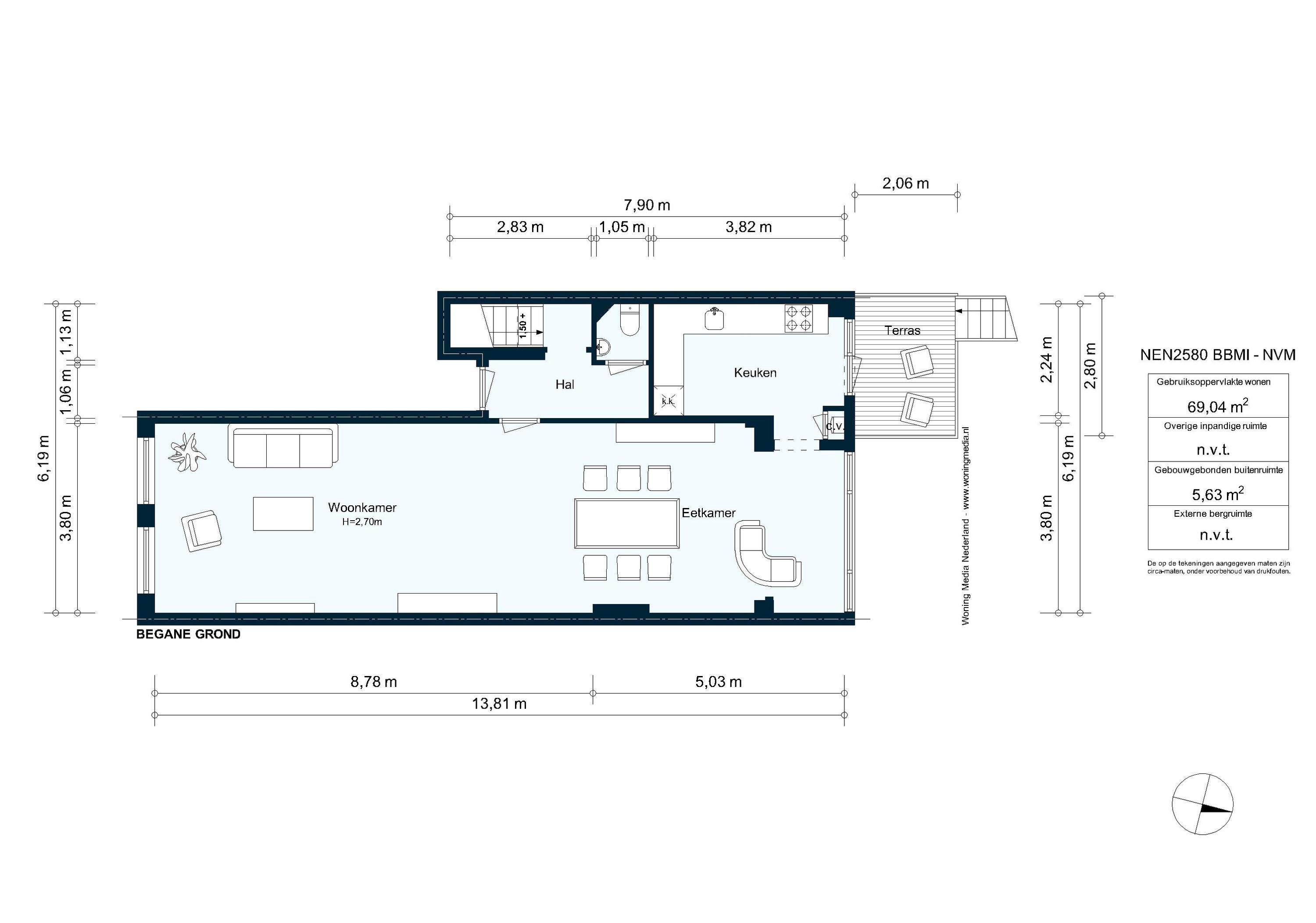
You reach the entrance of the house via the hall. The hall provides access to the various rooms. At the front is the spacious living room with a ceiling height of 2.70 meters and large windows that provide beautiful light. The living room offers space for a comfortable sitting area and overlooks the charming Frans van Mierisstraat. The dining room and semi-open kitchen are located at the rear of the house. The modern kitchen is equipped with various built-in appliances and provides access to the terrace with stairs to the garden. A wonderful place to relax in peace and quiet, right in the city center. There is also a separate toilet and a practical storage cupboard on this floor.

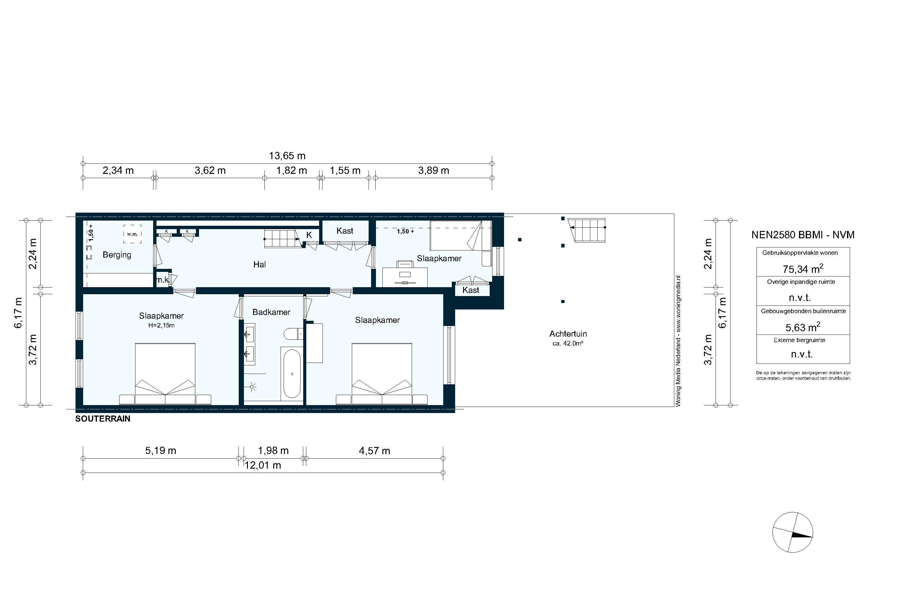
An staircase leads to the basement with three good-sized bedrooms. The master bedroom is located on the quiet garden side. The second bedroom is located at the front and is also spacious. The third bedroom is ideal as a children's room, study, or guest room. The modern bathroom is equipped with a bathtub, shower, toilet, double sink, and towel radiators. There is also a separate laundry room with connections for a washing machine and dryer.

HOMEOWNERS' ASSOCIATION
- Monthly homeowners' association fee of €185 per month, including building insurance
- Active homeowners' association consisting of 4 members

OWNERSHIP SITUATION
- Freehold.

SPECIAL FEATURES
- Double ground floor apartment of approximately 144 m²
- Exterior painting (June 2025)
- Garden of approximately 32 m²
- Three bedrooms
- High ceilings (2.70 m on the ground floor)
- Energy label C;
- Delivery in consultation.

METRAGES
- NEN-2580 report available
- Usable area 144.38 m²
- Gross area 163.19 m²
- Terrace 5.63 m²
- Gross volume of the house 476.62 m³

SURROUNDINGS
The property is located in the popular Museum Quarter in Amsterdam Oud-Zuid. This neighborhood is characterized by its monumental houses, numerous squares, stately green avenues, the Vondel and Beatrix parks, busy shopping streets, and well-known restaurants. There is also a wide range of daycare centers and sought-after primary and secondary schools in the neighborhood. The luxury gym ‘Sportcity’ is located around the corner from the house.

The location, accessibility, charm, and liveliness of the neighborhood make it a very desirable place to live. The property is easily accessible by both car and public transport. You can walk or cycle to Amsterdam Zuid railway station in a few minutes and drive to the A10 ring road in 5 minutes. Both the Museumplein (the geographical center between the Center, South, West, and East) and the Vondelpark are only a few minutes' walk away. Parking is almost always available in front of your door.

'‘This information has been compiled by us with the necessary care. However, we accept no liability for any incompleteness, inaccuracy, or otherwise, or the consequences thereof. All specified sizes and surfaces are indicative. The NVM conditions apply.’'

Features

Surface 144 m2
Rooms 4
Bedrooms 3
Availability DIRECT
All Features

Features

Transfer of ownership
Asking price € 1.400.000,- K.K.
Status Available
Acceptance DIRECT
   
Construction
Kind of house Double ground-floor apartment (apartment)
Building type Resale property
   
Surface areas and volume
Living area 144 m2
Volume in cubic meters 477 m3
   
Layout
Number of rooms 4 (3 bedrooms)
Number of bath rooms 1
Number of stories 2
Facilities Mechanical ventilation
   
Energy
Energy label C
Insulation Wall insulation, floor insulation, partly double glazed
Heating CH boiler
Hot water CH boiler
   
Exterior space
Location Alongside a quiet road

Location

Do you want to know more or make an appointment?

We only use your data to be able to contact you. See also our privacy statement.