De Clercqstraat 95 2

1053 AH AMSTERDAM

Description

This beautiful 66 m² apartment with two bedrooms, two balconies, and an 11 m² attic room is located on the lively De Clercqstraat, on the corner of Jacob van Lennepstraat. The high ceilings, large windows, and corner location create a light and pleasant atmosphere. With three bedrooms, a spacious living room, and a stylish kitchen, this is an ideal home for those looking for space and comfort in a prime location in Oud-West.

LAYOUT
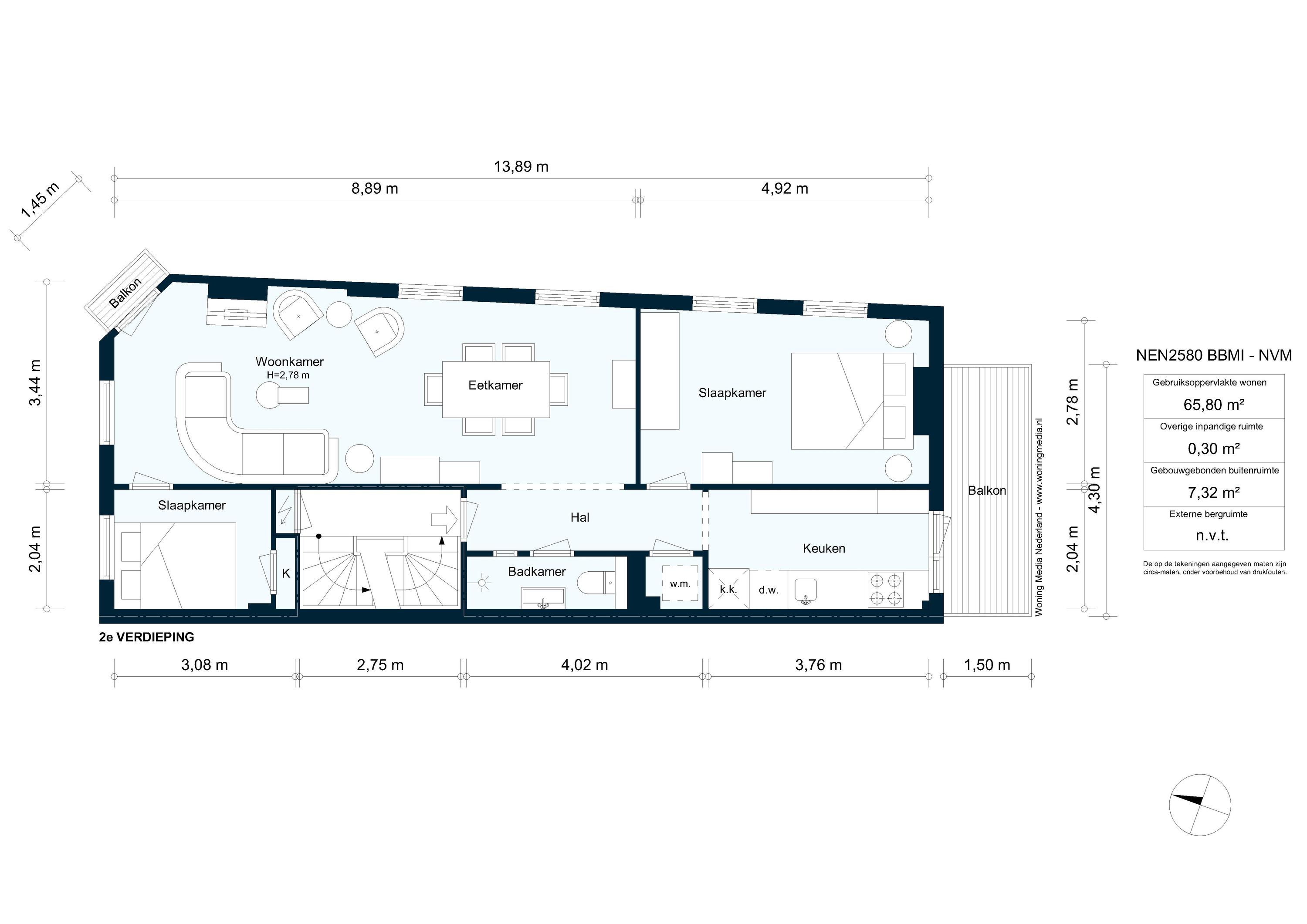
Second floor
The communal staircase leads to the entrance of the apartment on the second floor. The entrance is light and spacious: the living area extends over the entire length of the property, with the cozy living room and dining room at the front, featuring high ceilings (8.5 feet) and large windows that provide beautiful natural light. The living room is tastefully decorated with herringbone flooring and modern lighting. The dining room connects perfectly to this and offers space for a large dining table. At the rear is the modern kitchen, equipped with a concrete worktop, wall tiles in deep blue tones, and various built-in appliances, including a large gas stove, dishwasher, and fridge/freezer. From the kitchen, you can step right onto the balcony: a wonderful place to enjoy a cup of coffee. This floor also has two good-sized bedrooms, a modern bathroom with a shower combination and sink, and a separate toilet.

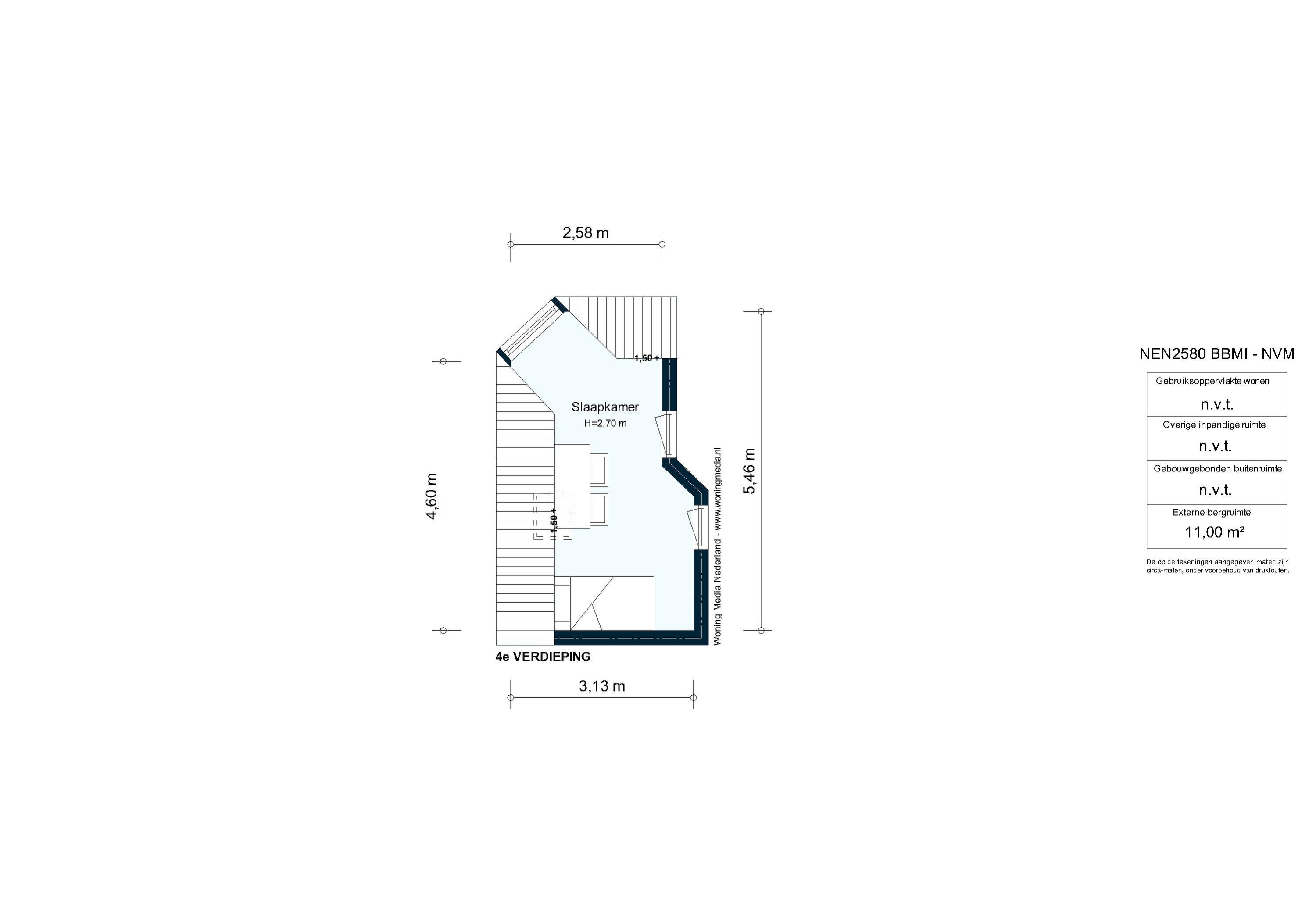
Fourth floor
An internal staircase leads to the top floor, where you will find a bedroom/study (11 m²). There is also a separate storage room (5 m²).

SPECIAL FEATURES
- Includes storage room on the fourth floor of approx. 11 m²
- Two balconies
- High ceilings (2.70 m – 2.78 m) and lots of natural light
- Luxury kitchen with built-in appliances
- Bathroom with bathtub/shower and sink
- Entirely fitted with wooden flooring
- Located in a well-maintained building on the corner of De Clercqstraat and Jacob van Lennepstraat
- Delivery in consultation

METRAGES
- NEN 2580 Measurement report available
- Usable living area: 65.8 m²
- Gross floor area: 73.34 m²
- External storage space (fourth floor): 11 m² + external storage space approx. 5 m².

HOMEOWNERS' ASSOCIATION
- Active and professionally managed homeowners' association consisting of 4 members
- Long-term maintenance plan (MJOP) available
- Monthly contribution: €213

OWNERSHIP SITUATION
- Located on municipal leasehold, with the ground rent bought out until 2053;
- General provisions 2016 apply.

LOCATION AND ACCESSIBILITY
De Clercqstraat is one of the most sought-after streets in Amsterdam Oud-West, offering the perfect mix of vibrant city life and tranquility. Within walking distance, you will find a wide range of cafés, restaurants, and shops, including Favoriet, Bar Centraal, Binnenvisser, and restaurant BAK. De Hallen, Jan Pieter Heijestraat, and Vondelpark are also just a few minutes' walk away. Accessibility is excellent: tram and bus connections stop almost at the door, and by bike you can reach the Jordaan, the city center, or De Pijp in just a few minutes. By car, you can reach the A10 ring road via Jan van Galenstraat or Overtoom.

“This information has been compiled by us with the necessary care. However, no rights can be derived from any incompleteness or inaccuracies. All sizes and surfaces are indicative. The NVM conditions apply.”

Features

Surface 66 m2
Rooms 4
Bedrooms 3
Exterior space Balcony
Availability Available in consultation
All Features

Features

Transfer of ownership
Asking price € 650.000,- K.K.
Status Available
Acceptance Available in consultation
   
Construction
Kind of house Mezzanine (apartment)
Building type Resale property
Year of construction 1905
   
Surface areas and volume
Living area 66 m2
Volume in cubic meters 226 m3
   
Layout
Number of rooms 4 (3 bedrooms)
Number of bath rooms 1
Number of stories 2
Facilities Tv via cable, french balcony, natural ventilation
   
Energy
Energy label E
Heating CH boiler
Hot water CH boiler
   
Exterior space
Balkon/dakterras Balcony

Location

Do you want to know more or make an appointment?

We only use your data to be able to contact you. See also our privacy statement.