Stadionkade 68 H

1077 VR AMSTERDAM

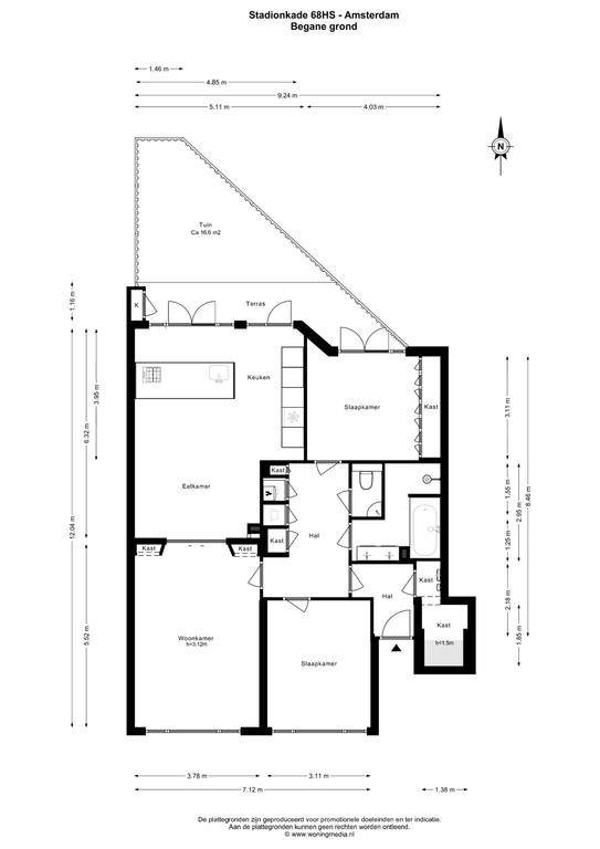
Description

We are pleased to present this beautiful apartment on Stadionkade, offering 104 m² of living space (NEN 2580) on one level and a delightful garden of approximately 20 m².

This elegant home combines luxury, comfort and a well-designed layout. Upon entering, you will immediately notice the exceptional finish, including high-quality materials, custom-made cabinetry in the hallway and a renovation executed in detail under architectural supervision.

The bright living room enjoys an unobstructed view of the water and flows seamlessly into the dining area and modern kitchen. The kitchen is fully equipped with high-end built-in appliances and features two French doors opening onto the terrace, creating a perfect connection between indoor and outdoor living.

The apartment offers two generous bedrooms, one at the quiet rear and one at the front. The luxurious bathroom includes a bathtub, double sink, spacious walk-in shower and a separate toilet.

FEATURES
High-quality finish
Rental price: €4.500,- per month excl. utilities and local taxes
Deposit: 2 months rent
Living area: 104m2
Lovely garden
Fully furnished and upholstered
Available from December 9

SURROUNDINGS:
The property is located in the popular Apollo neighborhood in Amsterdam Oud-Zuid. This neighborhood is characterized by its monumental houses, numerous squares, stately green avenues, the Vondel and Beatrix parks, bustling streets, well-known restaurants, and trendy shops. The location, accessibility, charm, and liveliness of the neighborhood make it a very desirable place to live. On Fridays, there is a lively market on Minervaplein, and the two permanent flower stalls add color to the streetscape.

In addition, there is a wide range of daycare centers and schools in the neighborhood (International School, British School, Barlaeus Gymnasium, Montessori, and Vossius Gymnasium).
The property is easily accessible by both car and public transport. Both Amsterdam Zuid railway station and the A10 ring road are a short distance away, ensuring that you can reach Schiphol Airport and other destinations very quickly. There is also a tram stop on Minervaplein and Beethovenstraat, which will take you to Museumplein or De Pijp in no time.

Another unique feature for Amsterdam: you can still easily park in front of your door in this neighborhood and you can apply for two parking permits.

Features

Surface 104 m2
Rooms 4
Bedrooms 2
Availability 2025-12-09
All Features

Features

Transfer of ownership
Rental price € 4.500,- per month
Status Under option
Acceptance 2025-12-09
   
Construction
Kind of house Downstairs apartment (apartment)
Building type Resale property
Year of construction 1931
   
Surface areas and volume
Living area 104 m2
Volume in cubic meters 432 m3
   
Layout
Number of rooms 4 (2 bedrooms)
Number of bath rooms 1
Number of stories 1
   
Energy
Heating CH boiler
Hot water CH boiler
   
Exterior space
Location Alongside a quiet road, unobstructed surrounding view

Location

Do you want to know more or make an appointment?

We only use your data to be able to contact you. See also our privacy statement.