Bolestein 49

1081 CR AMSTERDAM

Description

Retail space for rent – Bolestein 49, Buitenveldert

In a prime location in Buitenveldert, next to Aldi, we offer this shell retail space for rent. The space is delivered completely shell, including new shop fronts, and can be fully finished to your needs and liking. Thanks to its convenient location and ample parking right outside, this is an ideal location for various businesses.

Location:
Bolestein is located in the leafy Buitenveldert neighborhood, a popular area between Amsterdam South and Amstelveen. The proximity of Aldi and other shops ensures a constant flow of visitors. Accessibility is excellent, with both public transport and ample parking right outside the door.

Features:
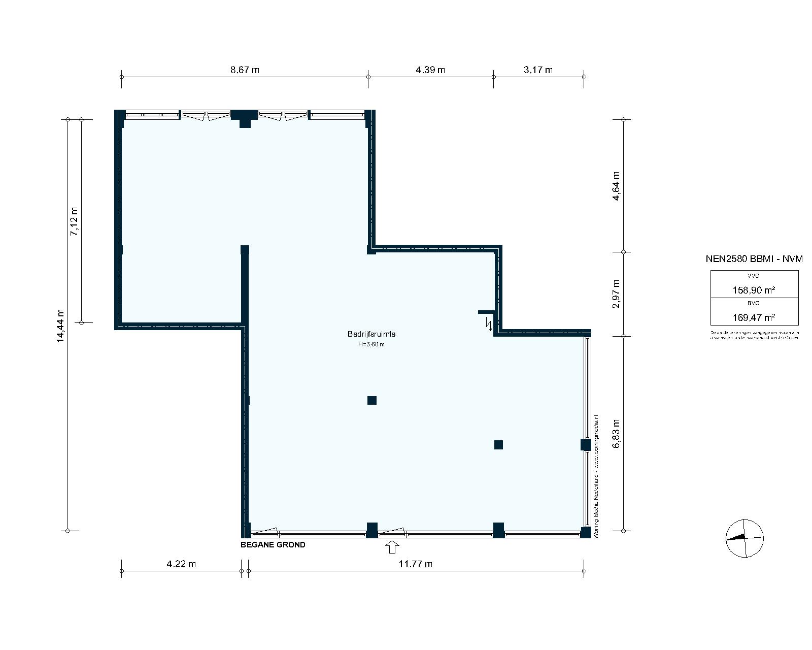
- 159 m² rentable floor space (Measuring instructions BBMI)
- Situated in a prime location in Buitenveldert;
- Delivered completely shell with new shop fronts;
- Can be fully finished to your liking and needs;
- Paid parking in front of the door;
- Block heating available;
- Term: 5 + 5 years;
- Service charges to be determined;
- Rental price: Upon request;
- Available immediately;
- Acceptance subject to owner’s approval;
- Tenant must conduct their own investigation to verify that the intended use complies with the zoning plan.

Service charges:
To be determined.

Level of completion:
Shell.

Rent payment:
Monthly, in advance.

Lease term:
5 + 5 years.

Security Deposit:
A security deposit equal to one quarter's payment.

Lease agreement:
Lease agreement based on the standard model of the Dutch Council for Real Estate (ROZ).

More information or a viewing? Feel free to contact us.

This information has been compiled with care. However, no rights can be derived from it. All dimensions and surface areas are indicative.

Features

Surface 159 sq.m.
Functions Office space
Availability Available in consultation
All Features

Features

Transfer of ownership
Asking price € 250,- per sq.m. per year
Status Available
Acceptance Available in consultation
   
Construction
Main use Office space
Alternative use(s) Office space
Building type Resale property
Year of construction 1970
   
Surface areas
Area 159 sq.m.
   
Energy
Energy label C
   
Surroundings
Location In residential area
Accessibility Bus stop: op minder dan 500 m
Tram stop: op 500 m tot 1000 m
Metro stop: op 2000 m tot 3000 m
Trainstation: op 2000 m tot 3000 m
Highway exit: op 1500 m tot 2000 m

Location

Do you want to know more or make an appointment?

We only use your data to be able to contact you. See also our privacy statement.